RESERVIERT - Zweifamilienhaus in Dessau-Waldersee - mit separaten Eingängen

Wunschobjekt ansehen

Ăśberblick

149.000 €
Preis
Dessau-RoĂźlau OT Waldersee - RESERVIERT
Standort
ca. 1.642 m²
Grundstücksfläche

Ăśberblick

149.000 €
Miete
ca. 170 m²
Mietfläche
Zweifamilienhaus
Typ

Objektbeschreibung

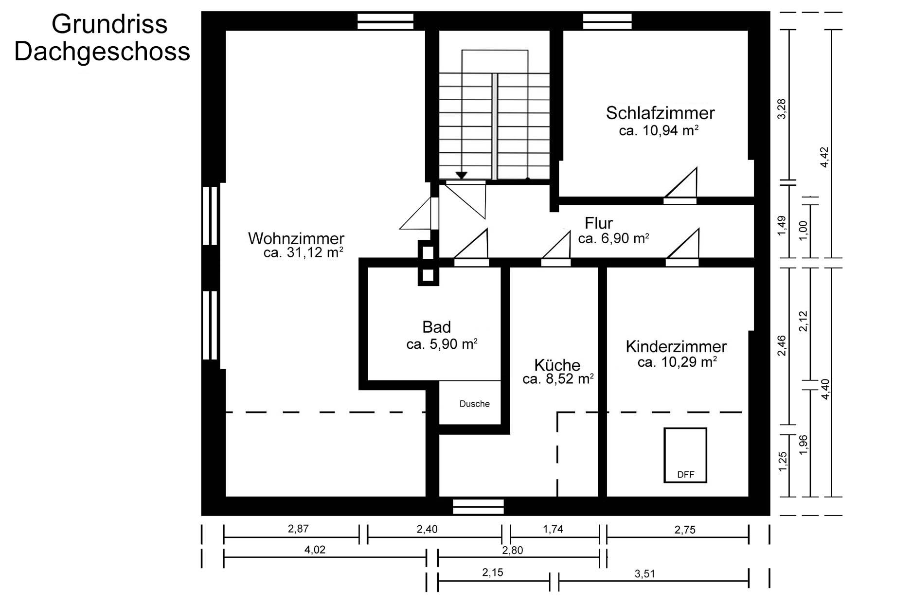
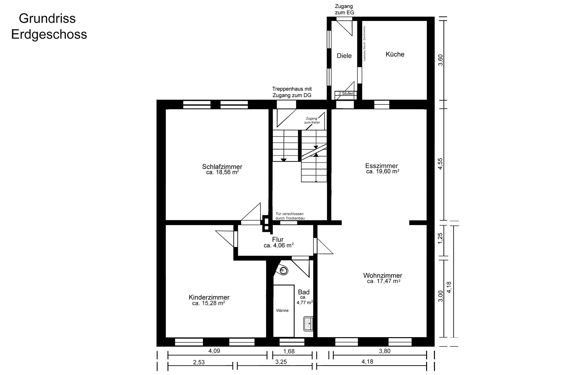
Raumaufteilung:

‍

Erdgeschoss:

Wohnzimmer, Schlafzimmer, Kinderzimmer, Diele, KĂĽche, Bad, Flur

‍

Obergeschoss:

3 Zimmer, KĂĽche, Bad, Flur

‍

Unter- / Kellerschoss:

vollständig unterkellert - außer der Anbau - 5 Räume

‍

‍

Wohnfläche:

ca. 170 m2

‍

GrundstĂĽck:

ca. 1.642 m2

‍

Extras:

- Doppelgarage

- WaschkĂĽche / Heizungsraum im Nebengelass

- EG und OG jeweils als separate Einheiten nutzbar - 2 separate Eingänge

‍

ErschlieĂźung:

Strom, Wasser, Erdgas, Kanalisation, Brunnenanschluss, SAT-Anlage, Telefon, Internet

Objektnummer
2017
Standort
Objekttyp
Zweifamilienhaus
Baujahr
ca. 1935
Wohnfläche
ca. 170 m²
GrundstĂĽck
ca. 1.642 m²

Wunschobjekt gefunden?

Jetzt anfragen

Ausstattung / Aufteilung

Sanierung

‍

Dach:

ca. 1990-2017 - mit Ziegeln gedeckt, Dachrinnen und Schornstein erneuert

‍

Fassade:

Außenwände und Giebel gedämmt

ca. 1998 - geputzt und gestrichen

ca. 2020 - Giebel neu verputzt

‍

Fenster:

ca. 2000 - Kunststoff weiĂź mit Jalousien

‍

TĂĽren:

ca. 2023 - Holz weiĂź, teilweise mit Glaseinsatz, HaustĂĽren: Kunststoff weiĂź

‍

Fußböden:

Fliesen, Laminat, PVC

‍

Heizung:

ca. 2012 - Erdgas-Brennwerttherme mit Warmwasseraufbereitung - Firma Brötje,

separate Abrechnung der Etagen durch Wärmemengenzähler möglich

‍

Sanitär:

ca. 1998 - EG: Bad mit Wanne

‍ca. 2015 - OG: Bad mit Dusche

‍

Elektrik:

ca. 2015 - EG/ DG: GroĂźteil erneuert

Wir prĂĽfen sogar die Finanzierung fĂĽr Sie.

Finanzierung prĂĽfen

Grundriss

No items found.
arrow-left
arrow-right

Anfrage

Über das nebenstehende Formular haben Sie die Möglichkeit ihr Wunschobjekt ganz unkompliziert anzufragen. Wir melden anschließend schnellstmöglich telefonisch oder per Email bei Ihnen zurück.

Paul BlĂĽmel
Ihr Ansprechpartner
+49 340 253 229 0ifc@immobilien-dessau.de
Anfrage absenden
Anfrage absenden
Thank you! Your submission has been received!
Oops! Something went wrong while submitting the form.
Vielen Dank für Ihre Anfrage! Wir werden Ihre Anfrage schnellstmöglich bearbeiten und uns anschließend persönlich mit Ihnen in Verbindung setzen.
Oops! Irgendetwas ist schief gelaufen. Bitte probieren Sie es erneut.