Zweifamilienhaus mit besonderem Charme in Lutherstadt Wittenberg

Wunschobjekt ansehen

Ăśberblick

175.000 €
Preis
Lutherstadt Wittenberg
Standort
ca. 1.090 m²
Grundstücksfläche

Ăśberblick

175.000 €
Miete
Insgesamt: ca. 178 m²
Mietfläche
Zweifamilienhaus
Typ

Objektbeschreibung

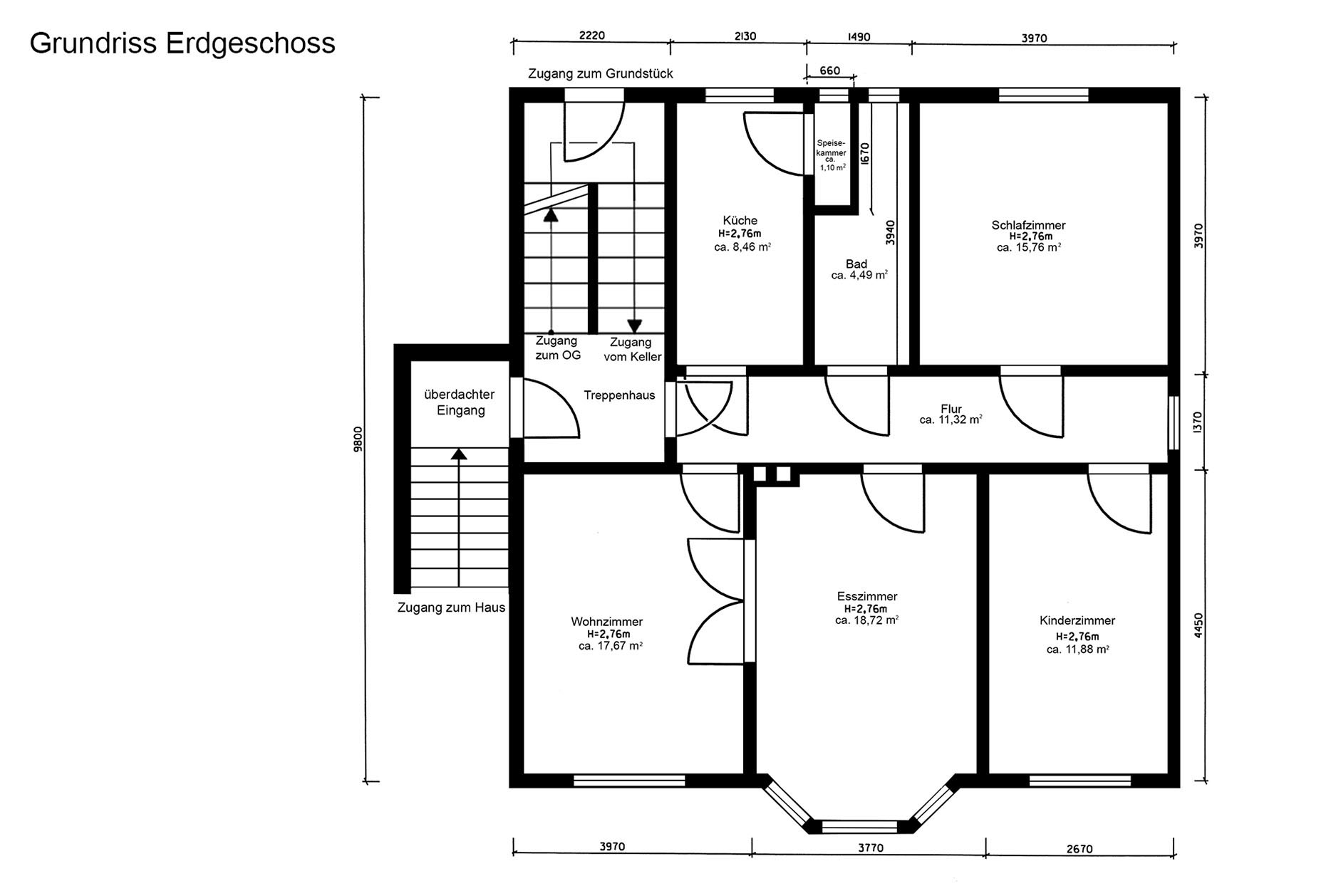
Raumaufteilung:

‍

Erdgeschoss:

Wohnzimmer, Esszimmer mit Erker, Schlafzimmer, Kinderzimmer, KĂĽche, Speisekammer, Bad, Flur

‍

Obergeschoss:

Wohnzimmer mit Erker, Esszimmer, Schlafzimmer, Kinderzimmer, KĂĽche, Speisekammer, Bad, Flur, Veranda
‍
Dachgeschoss:

weitere ausbaubare Fläche - davon 2 Zimmer teilweise ausgebaut

‍

Unter- / Kellergeschoss:

vollständig unterkellert - teilweise für Wohnzwecke ausgebaut (Zimmer, Bad, Gäste-WC)

‍

Wohnfläche:

Insgesamt: ca. 178 m²

EG: ca. 89 m²

OG: ca. 89 m²

DG: ca. 50 m² ausbaubare Fläche

‍

GrundstĂĽck:

ca. 1.090 m²

‍

Extras:

- Kaminanschluss in mehreren Zimmern möglich
- Kinderzimmer (EG) mit möglichen Anschlüssen für Gas und Wasser
- 2 Garagen und weitere Stellplätze
- angelegtes, gepflegtes GrundstĂĽck

‍

ErschlieĂźung:

Strom, Wasser, Erdgas, Kanalisation, Brunnenanschluss, SAT-Anlage, Telefon, Internet

Objektnummer
2046
Standort
Objekttyp
Zweifamilienhaus
Baujahr
ca. 1933
Wohnfläche
Insgesamt: ca. 178 m²
GrundstĂĽck
ca. 1.090 m²

Wunschobjekt gefunden?

Jetzt anfragen

Ausstattung / Aufteilung

Sanierung

‍

Dach:

ca. 1989 - gedeckt

ca. 1999 - Dachrinnen und Schornstein erneuert

‍

Fassade:

ca. 1996 - Vorderseite - gedämmt, geputzt und gestrichen

ca. 1996 - RĂĽckseite - geputzt und gestrichen

ca. 1996 - Sockel erneuert

‍

Fenster:

ca. 1995 - EG - Vorderseite: Kunststoff braun mit Jalousien

ca. 2000 - EG - RĂĽckseite: Kunststoff weiĂź mit Jalousien

ca. 1985 - OG - Vorderseite: 2-fach verglaste Holzfenster mit Jalousien

ca. 1998 - OG - RĂĽckseite: Kunststoff weiĂź mit Jalousien

ca. 1999 - UG - Vorderseite: teilweise Kunststoff braun

‍

TĂĽren:

ca. 1933 - EG/ OG: originale weiĂźe HolztĂĽren, teilweise braune HolztĂĽren

ca. 1996 - HoftĂĽr erneuert

‍

Fußböden:

Dielung, Fliesen, textiler Belag

‍

Heizung:

ca. 1994 - Erdgasheizung mit Warmwasseraufbereitung - Firma Wolf

‍

Sanitär:

ca. 1998 - EG: Bad mit Dusche

ca. 1998 - OG: Bad mit Dusche

ca. 1996 - UG: Bad mit Wanne, Gäste-WC

‍

Elektrik:

EG: DDR-Standard

OG: groĂźteils Verteilung erneuert

Wir prĂĽfen sogar die Finanzierung fĂĽr Sie.

Finanzierung prĂĽfen

Grundriss

No items found.
arrow-left
arrow-right

Anfrage

Über das nebenstehende Formular haben Sie die Möglichkeit ihr Wunschobjekt ganz unkompliziert anzufragen. Wir melden anschließend schnellstmöglich telefonisch oder per Email bei Ihnen zurück.

Paul BlĂĽmel
Ihr Ansprechpartner
+49 340 253 229 0ifc@immobilien-dessau.de
Anfrage absenden
Anfrage absenden
Thank you! Your submission has been received!
Oops! Something went wrong while submitting the form.
Vielen Dank für Ihre Anfrage! Wir werden Ihre Anfrage schnellstmöglich bearbeiten und uns anschließend persönlich mit Ihnen in Verbindung setzen.
Oops! Irgendetwas ist schief gelaufen. Bitte probieren Sie es erneut.