Stadtvilla mit besonderem Charme in Zerbst / Anhalt

Wunschobjekt ansehen

Ăśberblick

295.000 €
Preis
Zerbst (Anhalt)
Standort
ca. 424 m²
Grundstücksfläche

Ăśberblick

295.000 €
Miete
ca. 202 m² zzgl. Terrasse und Balkon
Mietfläche
Mehrfamilienhaus, Stadtvilla
Typ

Objektbeschreibung

Baujahr:

ca. 1938

‍

Raumaufteilung:

‍

Erdgeschoss:

Wohnzimmer, Arbeitszimmer, KĂĽche, Wintergarten mit Zugang zur
Terrasse, Bad, Diele, Windfang, Flur
‍
Obergeschoss:

3 Zimmer, Bad mit Sauna und separatem WC

‍

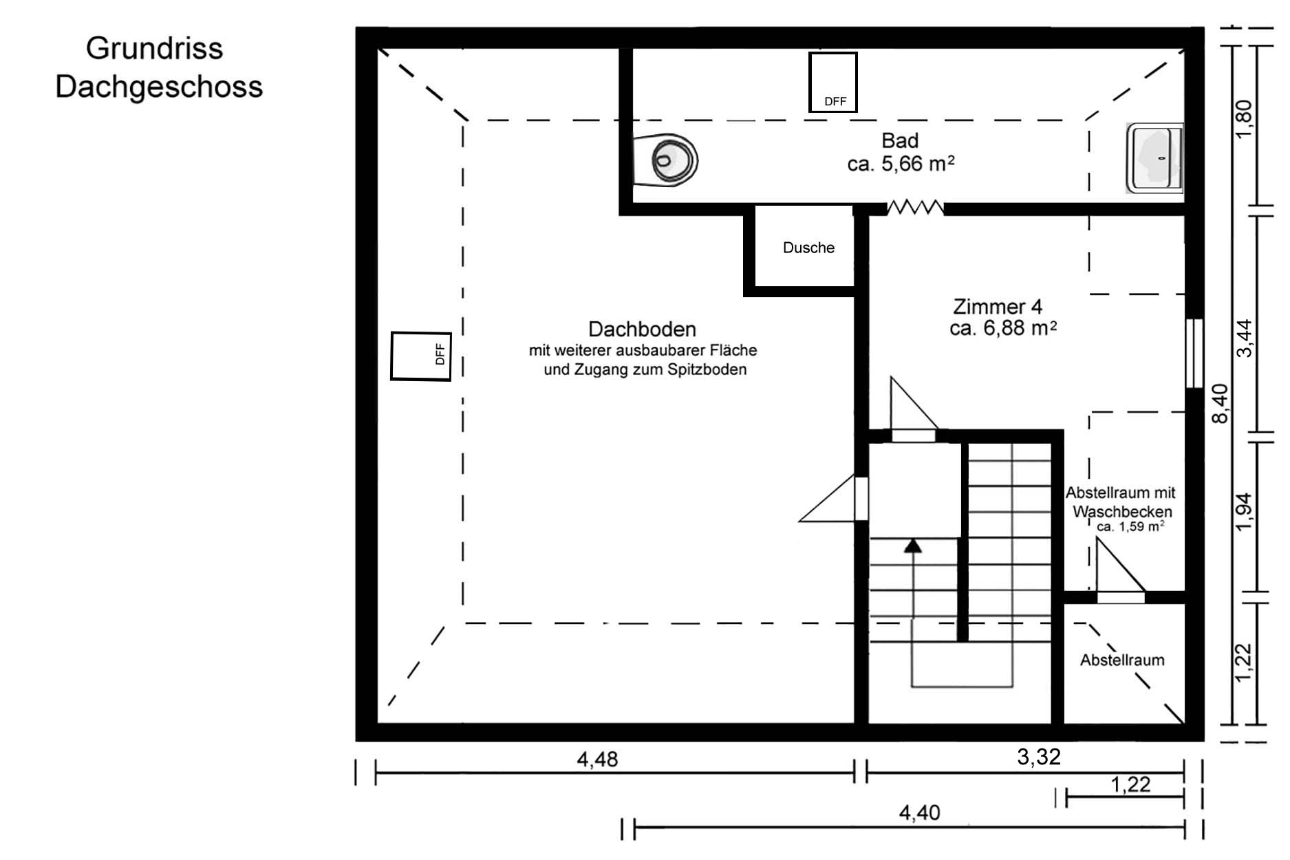
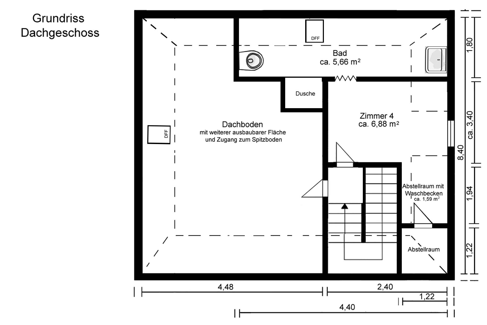
Dachgeschoss:

Zimmer, Bad, 2 Abstellkammern, weitere ausbaubare Fläche mit Zugang zum Spitzboden

‍

Unter- / Kellergeschoss:
vollständig unterkellert - 4 Abstellräume, Heizraum, Bad, Diele

‍

Wohnfläche:

ca. 202 m² zzgl. Terrasse und Balkon

‍

GrundstĂĽck:

ca. 424 m²

‍

Extras:

- ca. 2021 - Sauna im Bad (OG)
- ca. 2021 - beheizbarer Wintergarten mit Sonnenschutz vorhanden
- ca. 2009 - Photovoltaikanlage (4,07 kWp - 22 Module), jährliche Gutschrift in Höhe von ca. 800,00 €
- Garage mit elektrischem Tor und weiterem Stellplatz in der Zufahrt
- gepflegtes und vollständig umzäuntes Grundstück

‍

ErschlieĂźung:

Strom, Wasser, Erdgas, Kanalisation, SAT-Anlage, Telefon, Internet

Objektnummer
2022
Standort
Objekttyp
Mehrfamilienhaus, Stadtvilla
Baujahr
ca. 1938
Wohnfläche
ca. 202 m² zzgl. Terrasse und Balkon
GrundstĂĽck
ca. 424 m²

Wunschobjekt gefunden?

Jetzt anfragen

Ausstattung / Aufteilung

Sanierung

‍

Dach:

ca. 2015 - gedämmt und mit Biberschwanz (anthrazit) gedeckt

‍

Fassade:

ca. 2015 - geputzt und gestrichen

‍

Fenster:

ca. 2000 - Kunststoff innen weiĂź, auĂźen braun teilweise mit Jalousien

DG: zusätzlich Velux-Dachflächenfenster

‍

TĂĽren:

EG: HolztĂĽren teilweise mit Glaseinsatz

OG/DG: Eiche hell

‍

Fußböden:

EG: Parkett, Laminat, Fliesen

OG: Dielung und Parkett (aufgearbeitet ca. 2021), Laminat, Fliesen

DG: Fliesen, textiler Belag

‍

Heizung:

ca. 2021 - Erdgas-Brennwerttherme mit Warmwasseraufbereitung - Firma Weishaupt

‍

Sanitär:

ca. 2022 - EG: Bad mit ebenerdiger Dusche, Waschtisch, WC

ca. 2022 - OG: Bad mit ebenerdiger Dusche, Wanne mit Whirlpoolfunktion, Waschtisch, Sauna und separatem WC

ca. 1999 - Keller: Bad mit Dusche, Waschbecken, WC

‍

Elektrik:

Stand 2021- vollständig erneuert

Wir prĂĽfen sogar die Finanzierung fĂĽr Sie.

Finanzierung prĂĽfen

Grundriss

No items found.
arrow-left
arrow-right

Anfrage

Über das nebenstehende Formular haben Sie die Möglichkeit ihr Wunschobjekt ganz unkompliziert anzufragen. Wir melden anschließend schnellstmöglich telefonisch oder per Email bei Ihnen zurück.

Paul BlĂĽmel
Ihr Ansprechpartner
+49 340 253 229 0ifc@immobilien-dessau.de
Anfrage absenden
Anfrage absenden
Thank you! Your submission has been received!
Oops! Something went wrong while submitting the form.
Vielen Dank für Ihre Anfrage! Wir werden Ihre Anfrage schnellstmöglich bearbeiten und uns anschließend persönlich mit Ihnen in Verbindung setzen.
Oops! Irgendetwas ist schief gelaufen. Bitte probieren Sie es erneut.