RESERVIERT - sanierte Doppelhaushälfte in bevorzugter Lage von Dessau-Ziebigk

Wunschobjekt ansehen

Ăśberblick

310.000 €
Preis
Dessau-RoĂźlau OT Ziebigk - RESERVIERT
Standort
ca. 468 m²
Grundstücksfläche

Ăśberblick

310.000 €
Miete
ca. 96 m²
Mietfläche
Doppelhaushälfte
Typ

Objektbeschreibung

‍Raumaufteilung:

‍

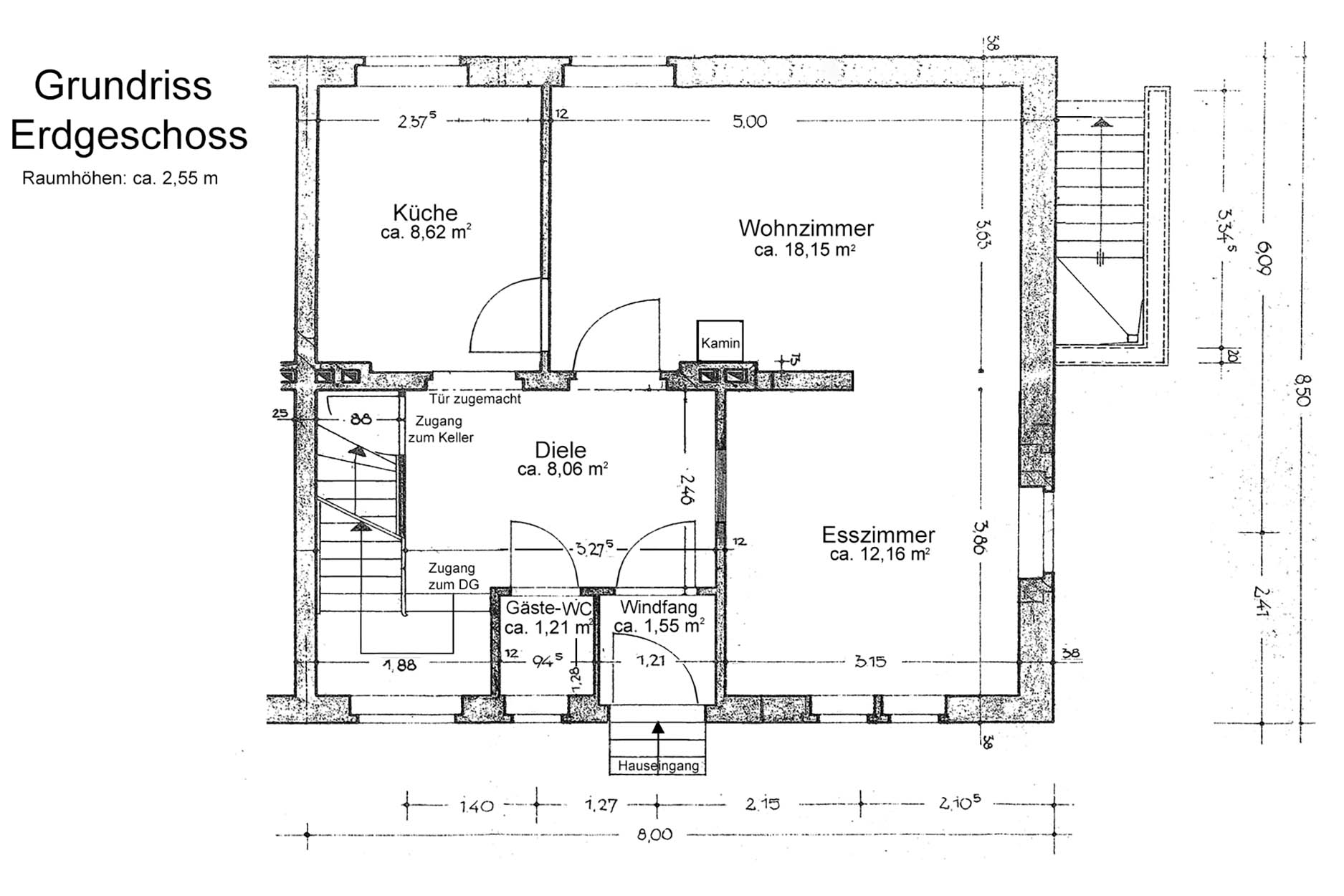
Erdgeschoss:
großes Wohnzimmer mit Kamin und Essbereich, Küche, Gäste-WC, Diele, Windfang
‍
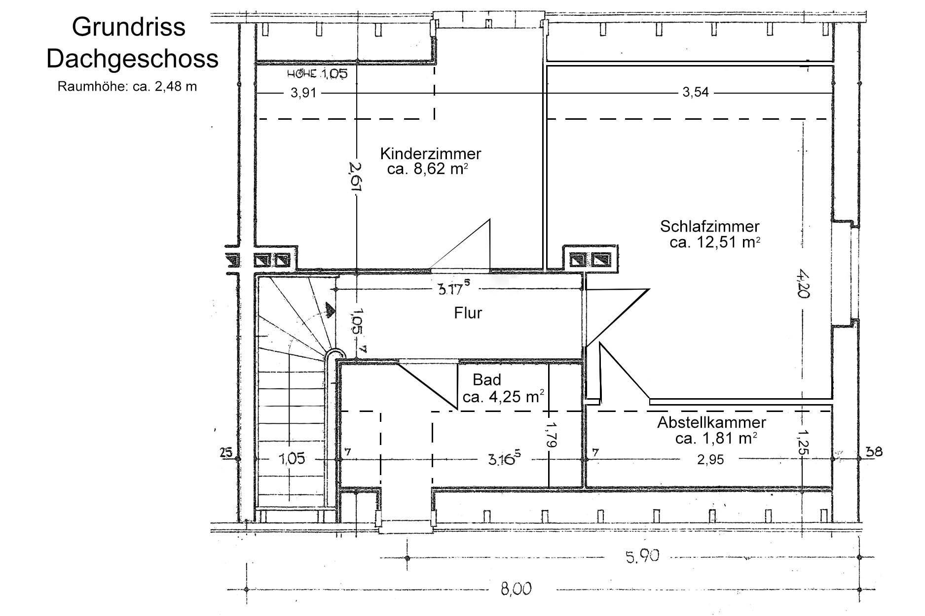
Ober- / Dachgeschoss:
Schlafzimmer mit Ankleide- / Abstellraum, Kinderzimmer, Bad, Flur
‍
Unter- / Kellergeschoss:
vollständig unterkellert

‍

Wohnfläche:

ca. 96 m²

‍

GrundstĂĽck:

ca. 468 m²

‍

Extras:

- ca. 2019 - Erneuerung der Innentreppe
- ca. 2019 - HARK-Specksteinkamin
- ca. 2020 - EinbaukĂĽche
- ca. 2024 - Klimaanlage im DG (2,5 kW)
- ca. 2019 - Vertikalabdichtung aller Außenwände
- ca. 2019 - Horizontalsperre an Giebelwand zum Nachbarn (Injektionsverfahren)
- ca. 2019 - Kellerausgang mit Granitstufen erneuert
- Garage vorhanden (ca. 2023 - Elektrik in der Garage teilweise erneuert)
- ca. 2019 - ĂĽberdachte Gartenterrasse
- ca. 2019 - Grundstück vollständig eingezäunt
- ca. 2020 - elektrische Toranlage

‍

ErschlieĂźung:

Strom, Wasser, Erdgas, Kanalisation, Kabelanschluss, Brunnenanschluss, Telefon, Internet

Objektnummer
2026
Standort
Objekttyp
Doppelhaushälfte
Baujahr
ca. 1958
Wohnfläche
ca. 96 m²
GrundstĂĽck
ca. 468 m²

Wunschobjekt gefunden?

Jetzt anfragen

Ausstattung / Aufteilung

Sanierung

‍

Dach:

ca. 1996 - gedämmt und gedeckt

‍

Fassade:

ca. 2019 - gedämmt, geputzt und gestrichen

‍

Fenster:

ca. 1997 - Kunststoff weiĂź mit Jalousien

‍

TĂĽren:

ca. 2019 - weiĂźe HolztĂĽren, teilweise mit Glaseinsatz
ca. 2019 - Erneuerung der KellertĂĽren
ca. 2019 - Erneuerung der HauseingangstĂĽr und KellerausgangstĂĽr

‍

Fußböden:

ca. 2019 - Parkett, Fliesen, Kork

‍

Heizung:

ca. 2019 - Erdgas - Brennwerttherme (Firma Viessmann)
EG/DG: FuĂźbodenheizung
UG: Heizkörper

‍

Sanitär:

ca. 2019 - Gäste-WC mit Waschbecken
ca. 2019 - DG: Bad mit Wanne und Dusche
ca. 2019 - UG: WC mit Waschbecken

‍

Elektrik:

ca. 2019 - vollständig erneuert

Wir prĂĽfen sogar die Finanzierung fĂĽr Sie.

Finanzierung prĂĽfen

Grundriss

No items found.
arrow-left
arrow-right

Anfrage

Über das nebenstehende Formular haben Sie die Möglichkeit ihr Wunschobjekt ganz unkompliziert anzufragen. Wir melden anschließend schnellstmöglich telefonisch oder per Email bei Ihnen zurück.

Paul BlĂĽmel
Ihr Ansprechpartner
+49 340 253 229 0ifc@immobilien-dessau.de
Anfrage absenden
Anfrage absenden
Thank you! Your submission has been received!
Oops! Something went wrong while submitting the form.
Vielen Dank für Ihre Anfrage! Wir werden Ihre Anfrage schnellstmöglich bearbeiten und uns anschließend persönlich mit Ihnen in Verbindung setzen.
Oops! Irgendetwas ist schief gelaufen. Bitte probieren Sie es erneut.