interessantes Zweifamilienhaus in Jessen / Elster - EG auch als Gewerbe nutzbar

Wunschobjekt ansehen

Ăśberblick

192.000 €
Preis
Jessen / Elster
Standort
ca. 224 m²
Grundstücksfläche

Ăśberblick

192.000 €
Miete
ca. 187 m²
Mietfläche
Mehrfamilienhaus
Typ

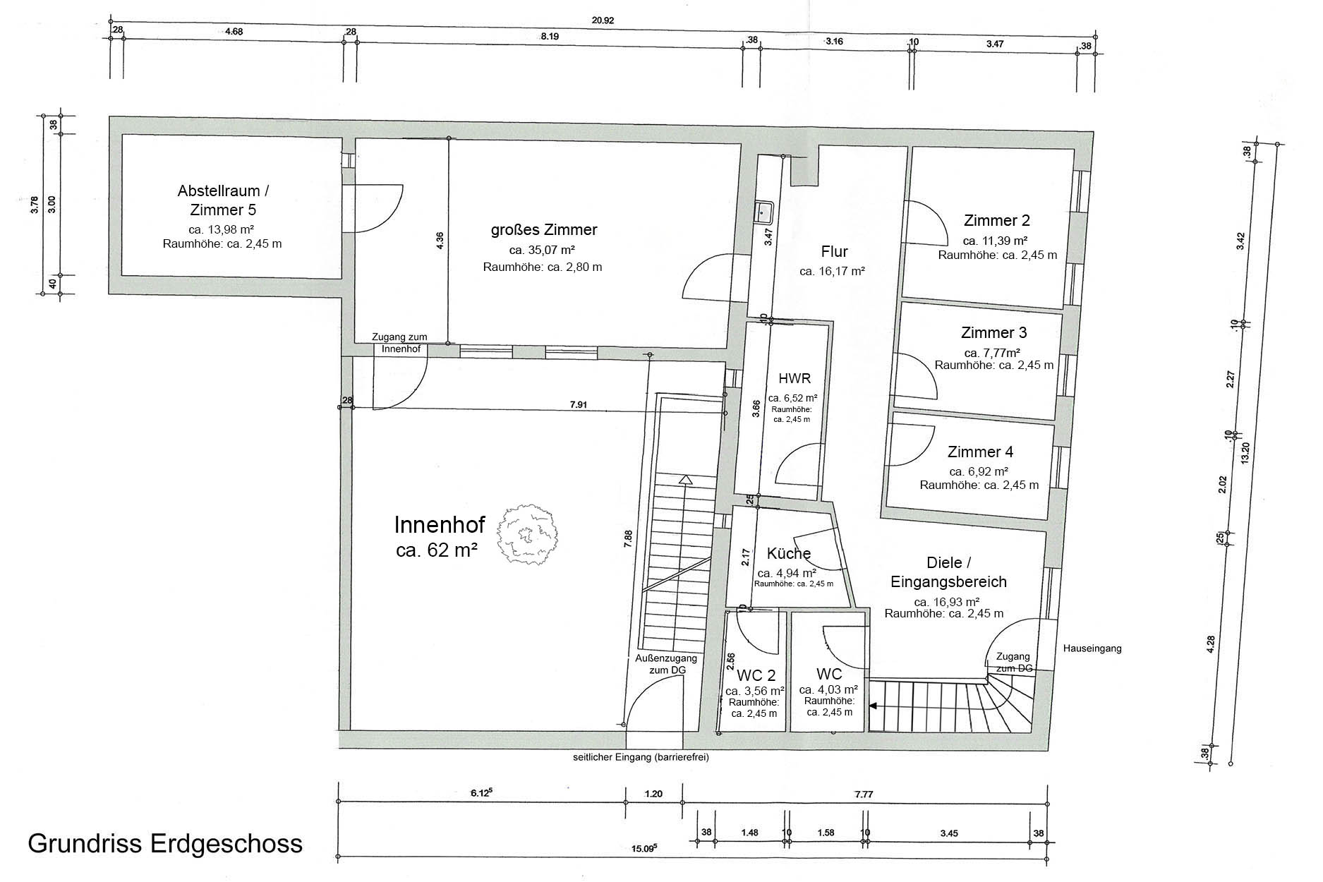
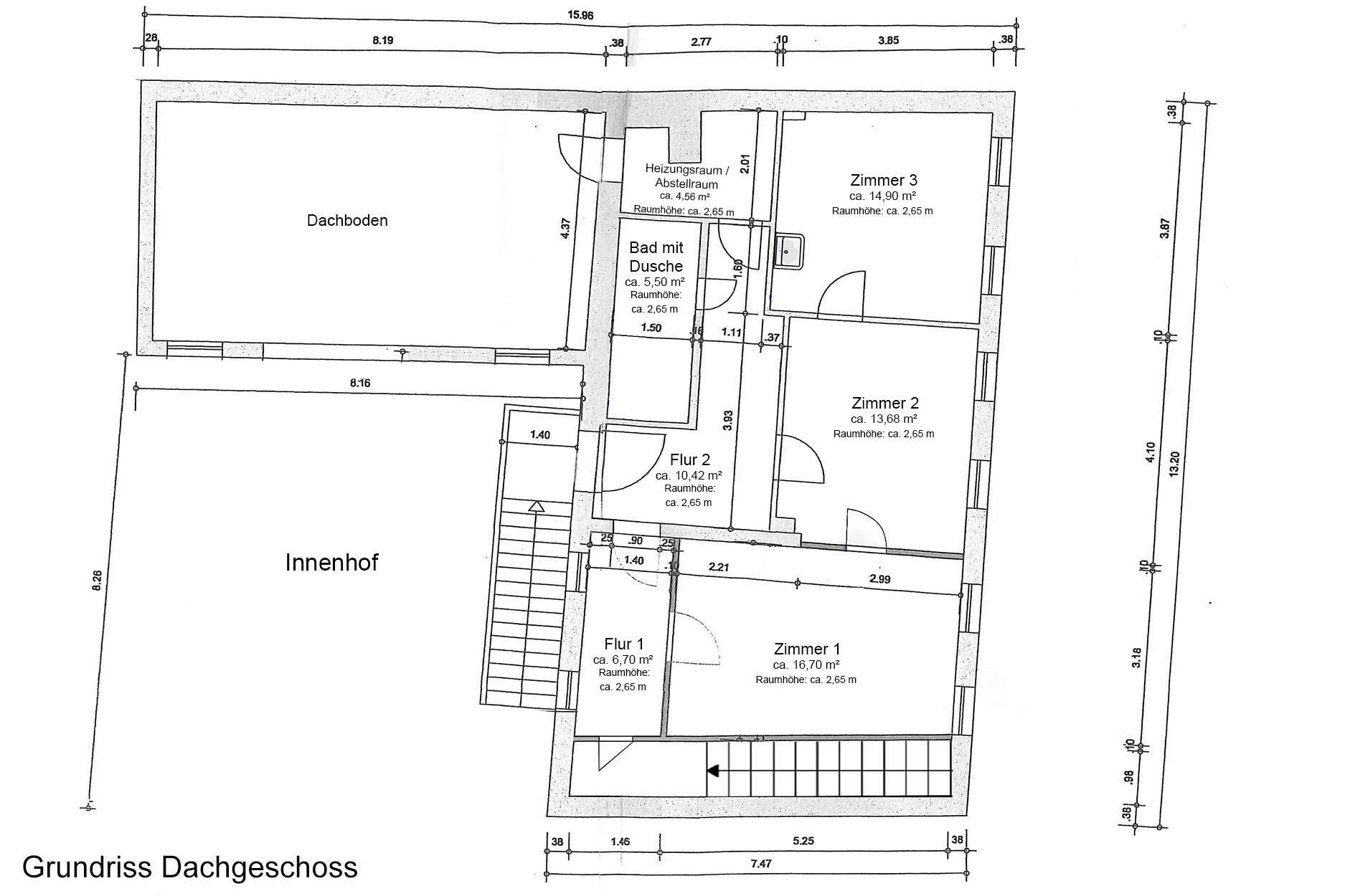
Objektbeschreibung

Raumaufteilung:

‍

Erdgeschoss:

großes Zimmer mit Zugang zum  Hof, 3 Zimmer, Abstellraum (als weiteres Zimmer nutzbar), Küche, 2 WC´s, Hauswirtschaftsraum, Eingangsbereich,  Flur

‍

Obergeschoss:

3 Zimmer, Bad, Heizungsraum, Flur, weitere ausbaubare Fläche vorhanden

‍

Dachboden:

fĂĽr Abstellzwecke geeignet

‍

Wohnfläche:

ca. 187 m2

‍

GrundstĂĽck:

ca. 224 m2

‍

Extras:

- Innen: massive Holztreppe (ca. 2012) mit Stufenbeleuchtung

- FuĂźbodenheizung im groĂźen Zimmer im EG

- Erdgeschoss ĂĽber seitlichen Eingang barrierefrei

- begrünter Innenhof (ca. 62 m2) mit 2 separaten Zugängen zum EG/ DG

- 2 Stellplätze vor dem Haus

‍

ErschlieĂźung:

Strom, Wasser, Erdgas, Kanalisation, Kabelanschluss, Telefon, Internet

Objektnummer
2018
Standort
Objekttyp
Mehrfamilienhaus
Baujahr
ca. 1900
Wohnfläche
ca. 187 m²
GrundstĂĽck
ca. 224 m²

Wunschobjekt gefunden?

Jetzt anfragen

Ausstattung / Aufteilung

Sanierung

‍

Dach:

ca. 2012 - Decke gedämmt,  neu gedeckt

‍

Fassade:

ca. 2012 - Außenwände gedämmt, Anbau gedämmt, geputzt und gestrichen

‍

Fenster:

ca. 2007 - EG: Kunststoff weiß mit 2-fach -  Isolierverglasung

ca. 2006 - OG: Holz weiĂź mit 2-fach - Isolierverglasung

‍EG / OG: Großteil mit innenliegenden Jalousetten und Fliegenschutz

‍

TĂĽren:

ca. 2007 - EG: InnentĂĽren - Eiche hell

ca. 2012 - OG: 2 GlastĂĽren, Eiche hell und Eiche dunkel

‍

Fußböden:

ca. 2007 - EG: Fliesen, textiler Belag

ca. 2012 - OG: PVC, textiler Belag

‍

Heizung:

ca.  1996 - Erdgas - Firma  Buderus,

Fußbodenheizung im großen Zimmer im EG,

separate Abrechnung der Etagen möglich

‍

Sanitär:

ca. 2007 - EG: 2 WC´s mit Waschbecken (1 Waschbecken im Flur)

‍ca. 2006 - OG: Bad mit Dusche und Waschbecken

‍

Elektrik:

ca. 2007 EG: neu verlegt‍

ca. 2012 OG: neu verlegt

Wir prĂĽfen sogar die Finanzierung fĂĽr Sie.

Finanzierung prĂĽfen

Grundriss

No items found.
arrow-left
arrow-right

Anfrage

Über das nebenstehende Formular haben Sie die Möglichkeit ihr Wunschobjekt ganz unkompliziert anzufragen. Wir melden anschließend schnellstmöglich telefonisch oder per Email bei Ihnen zurück.

Paul BlĂĽmel
Ihr Ansprechpartner
+49 340 253 229 0ifc@immobilien-dessau.de
Anfrage absenden
Anfrage absenden
Thank you! Your submission has been received!
Oops! Something went wrong while submitting the form.
Vielen Dank für Ihre Anfrage! Wir werden Ihre Anfrage schnellstmöglich bearbeiten und uns anschließend persönlich mit Ihnen in Verbindung setzen.
Oops! Irgendetwas ist schief gelaufen. Bitte probieren Sie es erneut.