großes Reihenmittelhaus in Bitterfeld-Wolfen OT Greppin - auch für 2 Generationen geeignet

Wunschobjekt ansehen

Überblick

85.000 €
Preis
Bitterfeld-Wolfen OT Greppin
Standort
ca. 284 m²
Grundstücksfläche

Überblick

85.000 €
Miete
ca. 205 m²
Mietfläche
Reihenmittelhaus
Typ

Objektbeschreibung

Baujahr:

ca. 1936

Raumaufteilung:

Erdgeschoss:
2 Wohnzimmer, Schlafzimmer, Küche, Bad, Flur, Waschküche im Anbau

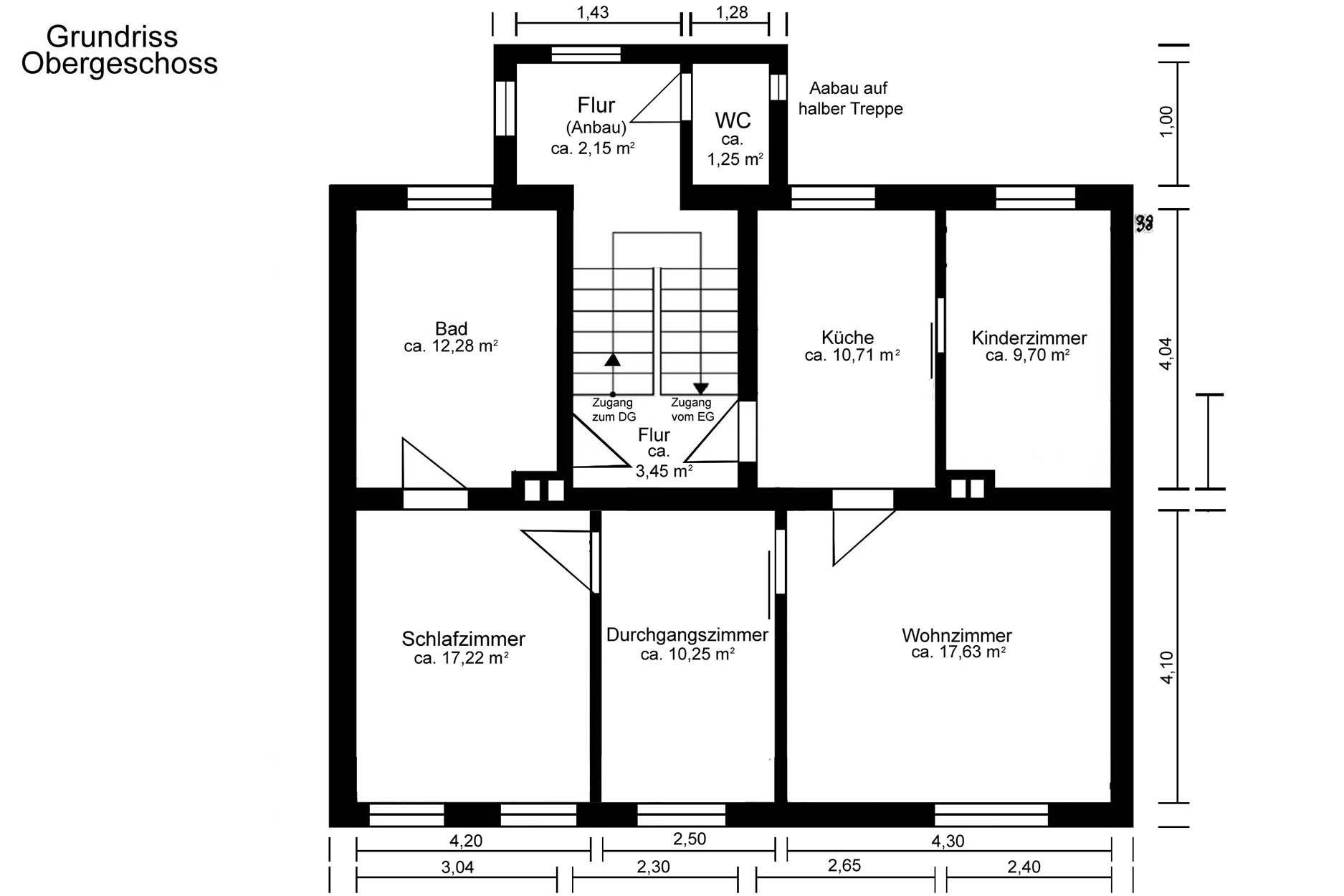
Obergeschoss:

Wohnzimmer, Schlafzimmer, Kinderzimmer, Durchgangszimmer, Küche, Bad, Flur

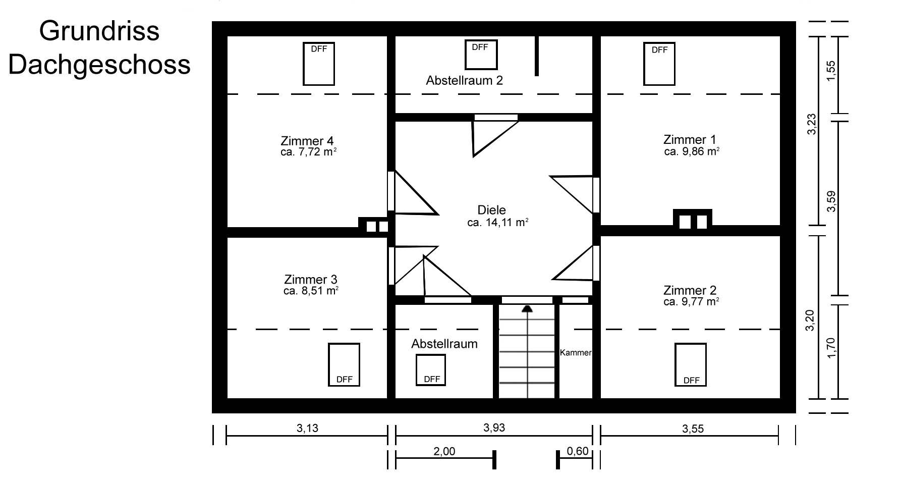
Dachgeschoss:

4 Zimmer, 3 Abstellräume, Diele

Unter- / Kellergeschoss:

teilweise unterkellert - 3 Räume

Wohnfläche:

ca. 205 m²


Grundstück:

ca. 284 m²

Extras:

- Garage vorhanden (Zufahrt von der Seitenstraße)

- ca. 2015 - Zufahrtstor erneuert

- Nebengelass mit 5 Abstellräumen und Werkstatt vorhanden

Erschließung:

Strom, Wasser, Erdgas, Kanalisation, SAT-Anlage, Telefon, Internet

Objektnummer
2036
Standort
Objekttyp
Reihenmittelhaus
Baujahr
ca. 1936
Wohnfläche
ca. 205 m²
Grundstück
ca. 284 m²

Wunschobjekt gefunden?

Jetzt anfragen

Ausstattung / Aufteilung

Sanierung

Dach:

ca. 1987 - mit Ziegeln gedeckt

Fassade:

Klinkerfassade

ca. 1998 - gereinigt

Fenster:

ca. 1999 - Straßenseite: Kunststoff innen weiß / außen braun

ca. 1999 - Rückseite: Kunststoff weiß

Jalousien im EG und OG

Nebengelass großteils mit Holzfenstern

Türen:

EG / OG: originale Holztüren

ca. 2005 - 2 Innentüren im EG erneuert

Fußböden:

Dielung, Laminat, Fliesen, PVC, textiler Belag

Heizung:

ca. 1997 - Erdgas-Zentralheizung mit Warmwasseraufbereitung
- Firma Vaillant, separate Thermen in EG und OG - separate Abrechnung

Sanitär:

ca. 1995 - EG: Bad mit Wanne und Dusche

ca. 1995 - EG: Gäste-WC

ca. 1995 - OG: Bad mit Wanne und Waschbecken /

WC auf halber Treppe

Elektrik:

DDR-Standard

Wir prüfen sogar die Finanzierung für Sie.

Finanzierung prüfen

Grundriss

No items found.
arrow-left
arrow-right

EnEV-Datenblatt

Datenblatt einsehen

Anfrage

Über das nebenstehende Formular haben Sie die Möglichkeit ihr Wunschobjekt ganz unkompliziert anzufragen. Wir melden anschließend schnellstmöglich telefonisch oder per Email bei Ihnen zurück.

Paul Blümel
Ihr Ansprechpartner
+49 340 253 229 0ifc@immobilien-dessau.de
Anfrage absenden
Anfrage absenden
Thank you! Your submission has been received!
Oops! Something went wrong while submitting the form.
Vielen Dank für Ihre Anfrage! Wir werden Ihre Anfrage schnellstmöglich bearbeiten und uns anschließend persönlich mit Ihnen in Verbindung setzen.
Oops! Irgendetwas ist schief gelaufen. Bitte probieren Sie es erneut.