RESERVIERT - gepflegtes Reihenmittelhaus mit Garage in ruhiger Lage von Aken (Elbe)

Wunschobjekt ansehen

Ăśberblick

179.000 €
Preis
Aken (Elbe) - RESERVIERT
Standort
ca. 195 m²
Grundstücksfläche

Ăśberblick

179.000 €
Miete
ca. 112 m²
Mietfläche
Reihenmittelhaus
Typ

Objektbeschreibung

Raumaufteilung:

‍

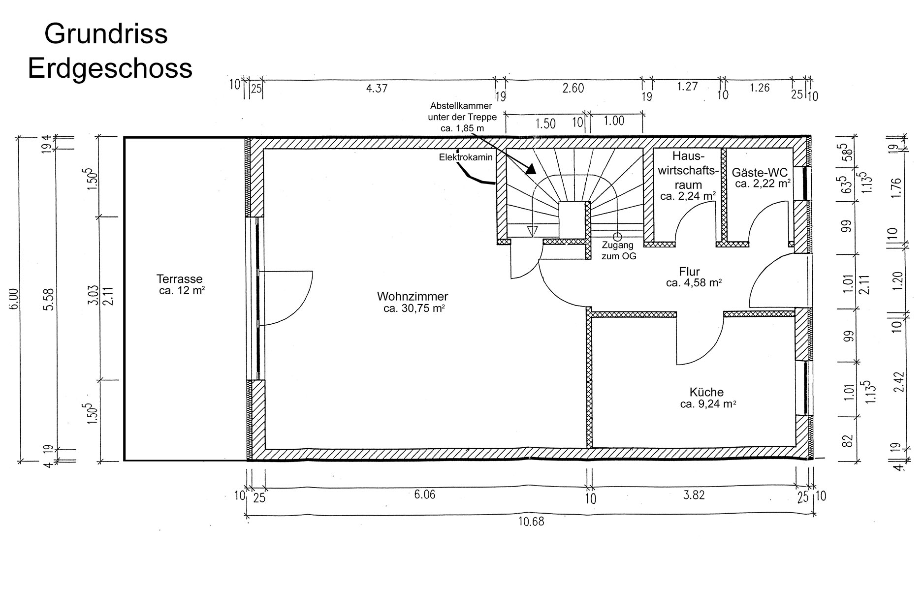
Erdgeschoss:

Wohnzimmer mit Zugang zur Terrasse, Küche, Gäste-WC, Hauswirtschaftsraum, Abstellkammer, Flur

‍

Obergeschoss:

Schlafzimmer, Ankleidezimmer, Arbeitszimmer, Bad, Flur

‍

Dachgeschoss:

groĂźer Hauswirtschaftsraum

‍

Wohnfläche:

ca. 112 m²

‍

GrundstĂĽck:

Haus mit Grundstück ca. 177 m²

separates Grundstück mit Garage ca. 18 m²

‍

Extras:

- Elektrokamin im Wohnzimmer

- Terrasse mit Sonnenschutz und aufschiebbarer Ăśberdachung

- Gartenhaus mit AuĂźenkamin

- Stellplatz vor dem Haus und separate Garage

- Auszug bis Ende März 2026

‍

ErschlieĂźung:

Strom, Wasser, Gas, Kanalisation, Kabelanschluss, SAT-Anlage, 2 BrunnenanschlĂĽsse, Telefon, Internet - Glasfaser liegt vor dem Haus an

Objektnummer
2045
Standort
Objekttyp
Reihenmittelhaus
Baujahr
ca. 1995
Wohnfläche
ca. 112 m²
GrundstĂĽck
ca. 195 m²

Wunschobjekt gefunden?

Jetzt anfragen

Ausstattung / Aufteilung

Sanierung

‍
Dach:

ca. 1995 - gedämmt und gedeckt

‍

Fassade:

ca. 1995 - geputzt

ca. 2022 - gestrichen

‍

Fenster:

ca. 1995 - GrundstĂĽcksseite: Holzfenster weiĂź mit Jalousien, im Wohnzimmer elektrisch

ca. 2019 - Kunststoff weiĂź mit Alu-Jalousien und Fliegenschutz

‍

TĂĽren:

ca. 2015 - weiĂźe LandhaustĂĽren, KĂĽche mit GlasschiebetĂĽr

‍

Fußböden:

ca. 2013 - Vinyl und Fliesen

‍

Heizung:

ca. 2015 - Gastherme mit Warmwasseraufbereitung - Firma Junkers

ca. 2015 - 4 Heizkörper erneuert

‍

Sanitär:

ca. 2015 - EG: Gäste-WC

ca. 2015 - OG: Bad mit Dusche, WC, Waschbecken und Wanne (ca.1995)

‍

Elektrik:

ca. 2015 - EG/OG: teilweise erneuert / GroĂźteil: Stand ca. 1995

ca. 2015 - DG: vollständig erneuert

Wir prĂĽfen sogar die Finanzierung fĂĽr Sie.

Finanzierung prĂĽfen

Grundriss

No items found.
arrow-left
arrow-right

Anfrage

Über das nebenstehende Formular haben Sie die Möglichkeit ihr Wunschobjekt ganz unkompliziert anzufragen. Wir melden anschließend schnellstmöglich telefonisch oder per Email bei Ihnen zurück.

Paul BlĂĽmel
Ihr Ansprechpartner
+49 340 253 229 0ifc@immobilien-dessau.de
Anfrage absenden
Anfrage absenden
Thank you! Your submission has been received!
Oops! Something went wrong while submitting the form.
Vielen Dank für Ihre Anfrage! Wir werden Ihre Anfrage schnellstmöglich bearbeiten und uns anschließend persönlich mit Ihnen in Verbindung setzen.
Oops! Irgendetwas ist schief gelaufen. Bitte probieren Sie es erneut.