freistehendes Einfamilienhaus mit 7 Garagen in zentraler Lage von Lutherstadt Wittenberg

Wunschobjekt ansehen

Ăśberblick

299.000 €
Preis
Lutherstadt Wittenberg
Standort
ca. 1448 m²
Grundstücksfläche

Ăśberblick

299.000 €
Miete
ca. 108 m²
Mietfläche
Einfamilienhaus
Typ

Objektbeschreibung

Raumaufteilung:

‍

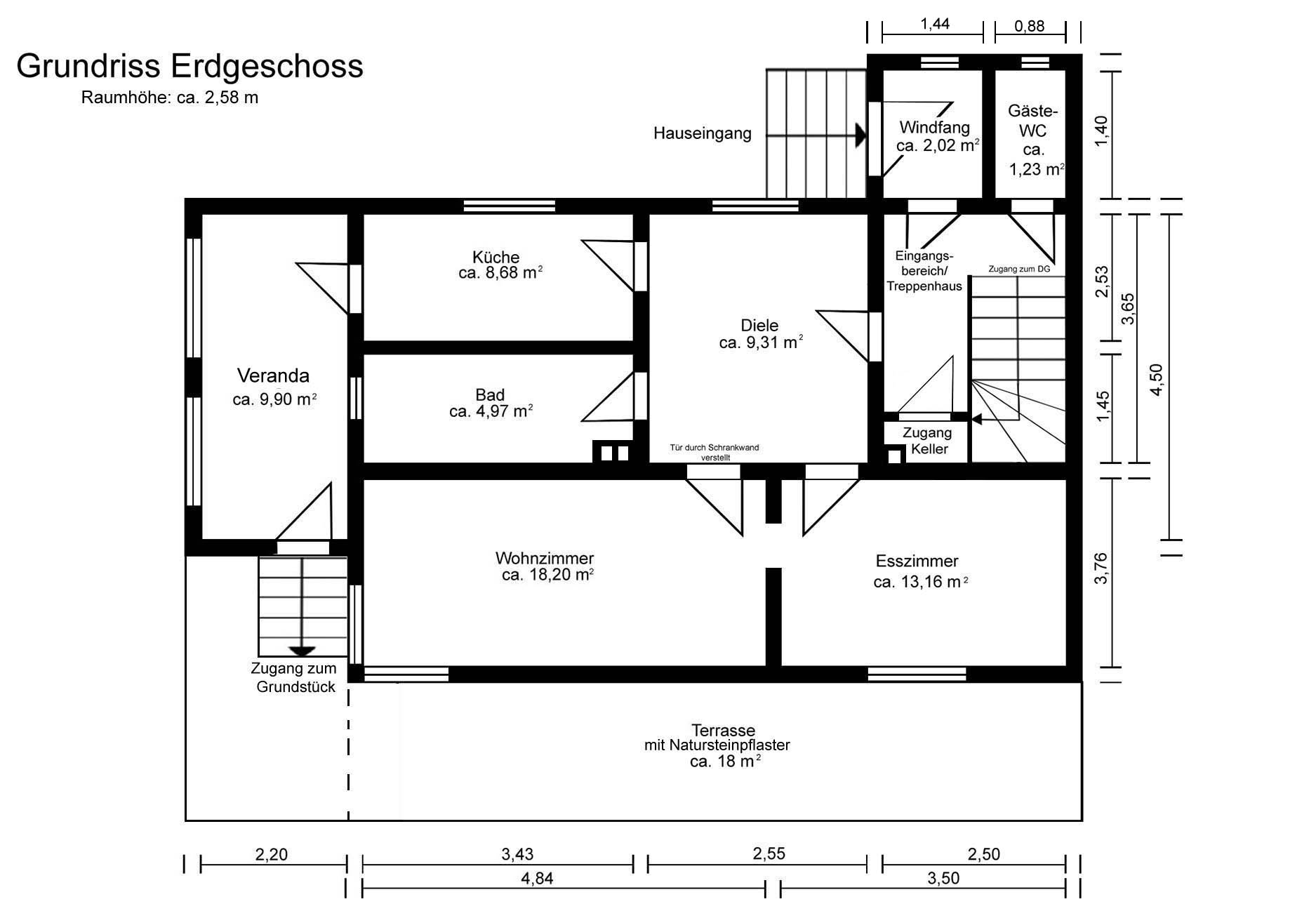
Erdgeschoss:

Wohnzimmer, Esszimmer, Küche, Veranda mit Zugang zum Grundstück, Bad, Gäste-WC, Diele, Windfang, Eingangsbereich/ Treppenhaus
‍
Dachgeschoss:

Schlafzimmer, 2 Kinderzimmer, Abstellraum, Raum mit Zugang zum Dachboden, Flur

‍

Unter- / Kellergeschoss:

vollständig unterkellert - Werkstatt, Hauswirtschaftsraum mit Zugang zum Grundstück, Heizungsraum, Abstellraum, Diele

‍

Wohnfläche:

ca. 108 m² zzgl. Terrasse

‍

GrundstĂĽck:

ca. 1448 m²

‍

Sonstiges:

- 7 Garagen ( Außenmaß 26,25 m x 6 m) und weitere Stellplätze auf dem Grundstück vorhanden
- Gewächshaus und Teich im Garten vorhanden
- gepflegtes und vollständig umzäuntes Grundstück

‍

ErschlieĂźung:

Strom, Wasser, Erdgas, Kanalisation, Brunnenanschluss, Kabelanschluss, Telefon, Internet - Glasfaser

Objektnummer
2028
Standort
Objekttyp
Einfamilienhaus
Baujahr
ca. 1936
Wohnfläche
ca. 108 m²
GrundstĂĽck
ca. 1448 m²

Wunschobjekt gefunden?

Jetzt anfragen

Ausstattung / Aufteilung

Sanierung

‍

Dach:

ca. 1999 - gedämmt mit Mineralwolle und mit engobierten Ziegeln gedeckt

‍

Fassade:

ca. 1999 - gedämmt und mit Naturstein verblendet

‍

Fenster:

ca. 1995 - Kunststoff braun
DG: zusätzlich Velux-Dachflächenfenster

‍

TĂĽren:

ca. 1995 - EingangstĂĽren - Holz - Tischleranfertigung
InnentĂĽren - originaler Zustand

‍

Fußböden:

EG: Fliesen, PVC, textiler Belag
DG: PVC, textiler Belag

‍

Heizung:

ca. 2016 - Erdgas-Brennwerttherme mit Warmwasseraufbereitung - Firma Weishaupt

‍

Sanitär:

ca. 1995 - EG: Bad mit Wanne und Dusche
ca. 1995 - EG: Gäste-WC

‍

Elektrik:

Stand 1996 - teilweise erneuert

Wir prĂĽfen sogar die Finanzierung fĂĽr Sie.

Finanzierung prĂĽfen

Grundriss

No items found.
arrow-left
arrow-right

Anfrage

Über das nebenstehende Formular haben Sie die Möglichkeit ihr Wunschobjekt ganz unkompliziert anzufragen. Wir melden anschließend schnellstmöglich telefonisch oder per Email bei Ihnen zurück.

Paul BlĂĽmel
Ihr Ansprechpartner
+49 340 253 229 0ifc@immobilien-dessau.de
Anfrage absenden
Anfrage absenden
Thank you! Your submission has been received!
Oops! Something went wrong while submitting the form.
Vielen Dank für Ihre Anfrage! Wir werden Ihre Anfrage schnellstmöglich bearbeiten und uns anschließend persönlich mit Ihnen in Verbindung setzen.
Oops! Irgendetwas ist schief gelaufen. Bitte probieren Sie es erneut.