einzugsbereites Einfamilienhaus mit viel Nebengelass in Kemberg

Wunschobjekt ansehen

Ăśberblick

165.000 €
Preis
Kemberg
Standort
ca. 660 m²
Grundstücksfläche

Ăśberblick

165.000 €
Miete
ca. 141 m²
Mietfläche
Einfamilienhaus
Typ

Objektbeschreibung

Raumaufteilung:

‍

Erdgeschoss:

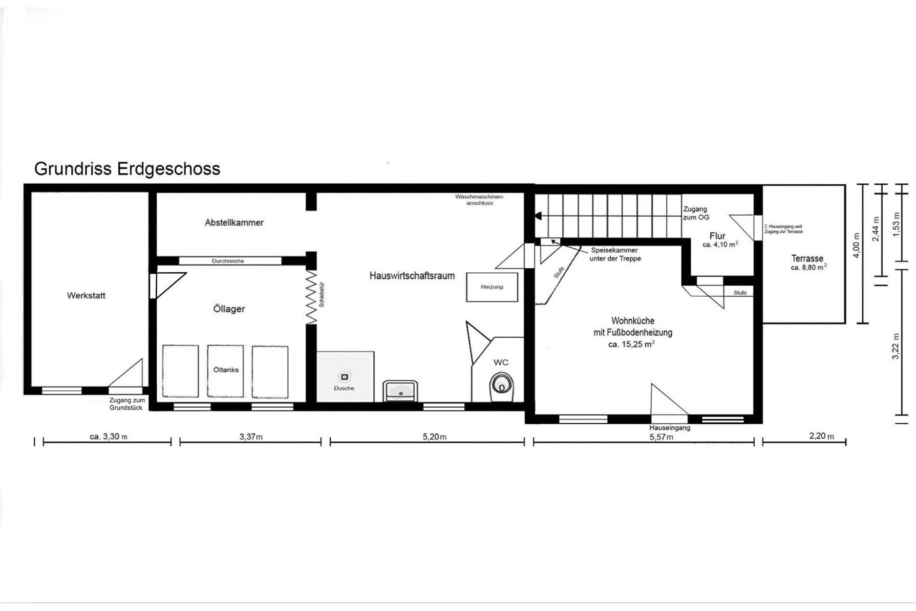
WohnkĂĽche mit Zugang zum Nebengelass, Speisekammer, Flur mit Zugang zur Terrasse

‍

Obergeschoss:

Wohnzimmer mit Zugang zum Balkon, KĂĽche mit Durchreiche, Schlafzimmer, Bad, Diele, Flur

‍

Dachgeschoss:

2 Schlafzimmer, geschlossene Loggia, Wohndiele, Gäste-WC, Abstellkammer, Flur

‍

Wohnfläche:

ca. 141 m²

‍

GrundstĂĽck:

ca. 660 m²

‍

Extras:

- Kaminanschluss in der Wohnküche (EG) und im Wohnzimmer (OG) möglich

- ĂĽberdachte Terrasse, Balkon

- Nebengelass mit Hauswirtschaftsraum, Ă–llager, Abstellraum und Werkstatt

- Scheune

- Garage und weitere Stellplätze

- öffentlicher Parkplatz gegenüber vom Grundstück

‍

ErschlieĂźung:

Strom, Wasser - Wasserleitungen teilweise sanierungsbedĂĽftig, Ă–l, Kanalisation, Brunnenanschluss, SAT-Anlage, Telefon, Internet

Objektnummer
2054
Standort
Objekttyp
Einfamilienhaus
Baujahr
ca. 1935
Wohnfläche
ca. 141 m²
GrundstĂĽck
ca. 660 m²

Wunschobjekt gefunden?

Jetzt anfragen

Ausstattung / Aufteilung

Sanierung

‍

Dach:

ca. 1989 - Sparren gedämmt

ca. 1993 - mit Ziegeln gedeckt

‍

Fassade:

ca. 1989 - gedämmt und geputzt

ca. 2010 - gestrichen

‍

Fenster:

ca. 1994 - EG/OG: Holz braun mit Jalousien

ca. 1993 - DG: Velux-Dachflächenfenster mit elektrischen Jalousien

OG: Fenster im Schlafzimmer defekt

DG: Austausch von 2 Akkus der elektrischen Jalousien erforderlich

‍

TĂĽren:

ca. 1995 - HaustĂĽr Holz braun

ca. 1995 - EG: NaturholztĂĽren / FeuerschutztĂĽr zum Nebengelass

ca. 1999 - OG: Mahagoni teilweise mit Glaseinsatz

ca. 1999 - DG: Buche hell

‍

Fußböden:

Dielung, Fliesen, PVC, textiler Belag

‍

Heizung:

ca. 1995 - Ă–lheizung mit Warmwasseraufbereitung - Firma Rapido (4.500 Liter)

ca. 2020 - Warmwasseraufbereitung erneuert

ca. 2022 - Brenner erneuert

FuĂźbodenheizung in der WohnkĂĽche

‍

Sanitär:

ca. 1995 - EG: Hauswirtschaftsraum mit Dusche und Gäste-WC

ca. 1995 - OG: Bad mit Wanne

ca. 1995 - DG: Gäste-WC

‍

Elektrik:

ca. 1995 - groĂźteils erneuert, teilweise DDR-Standard

Wir prĂĽfen sogar die Finanzierung fĂĽr Sie.

Finanzierung prĂĽfen

Grundriss

No items found.
arrow-left
arrow-right

Anfrage

Über das nebenstehende Formular haben Sie die Möglichkeit ihr Wunschobjekt ganz unkompliziert anzufragen. Wir melden anschließend schnellstmöglich telefonisch oder per Email bei Ihnen zurück.

Paul BlĂĽmel
Ihr Ansprechpartner
+49 340 253 229 0ifc@immobilien-dessau.de
Anfrage absenden
Anfrage absenden
Thank you! Your submission has been received!
Oops! Something went wrong while submitting the form.
Vielen Dank für Ihre Anfrage! Wir werden Ihre Anfrage schnellstmöglich bearbeiten und uns anschließend persönlich mit Ihnen in Verbindung setzen.
Oops! Irgendetwas ist schief gelaufen. Bitte probieren Sie es erneut.