einzugsbereite Eigentumswohnung mit Stellplatz in Dessau-RoĂźlau

Wunschobjekt ansehen

Ăśberblick

69.000 €
Preis
Dessau-RoĂźlau OT Dessau
Standort
ca. 5401 m²
Grundstücksfläche

Ăśberblick

69.000 €
Miete
ca. 54 m²
Mietfläche
Eigentumswohnung
Typ

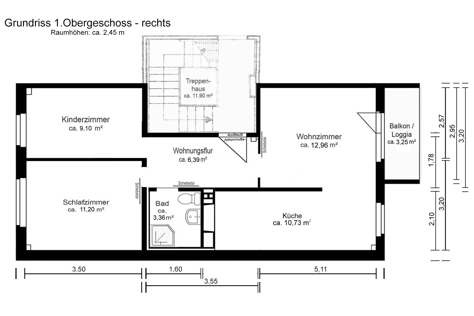
Objektbeschreibung

Raumaufteilung:

‍

Etage:
1. Obergeschoss - rechts

‍

Raumaufteilung (EG):
Wohnzimmer, Schlafzimmer, Kinderzimmer, KĂĽche, Bad, Flur

‍

Keller:
1  zugehöriger Kellerraum und 1 gemeinschaftlicher Fahrradkeller vorhanden

‍

Wohnfläche:
ca. 54 m²

‍

Sonstiges:
- Stellplatz vorhanden
- monatliches Hausgeld ca. 182,00 € inkl. Rücklage (ca. 14,00 €)

‍

ErschlieĂźung:
Strom, Wasser, Fernwärme, Kanalisation, Kabelanschluss, Telefon, Internet

Objektnummer
2024
Standort
Objekttyp
Eigentumswohnung
Baujahr
ca. 1968
Wohnfläche
ca. 54 m²
GrundstĂĽck
ca. 5401 m²

Wunschobjekt gefunden?

Jetzt anfragen

Ausstattung / Aufteilung

Sanierung

‍

Dach:
ca. 1993 - Bitumen-SchweiĂźbahnen

‍

Fassade:
ca. 1993 - gedämmt, geputzt und gestrichen

‍

Fenster:
ca. 1993 - Kunststoff weiĂź

‍

TĂĽren:
ca. 2023 - GlasschiebetĂĽren teilweise mit Mattglas

‍

Fußböden:
ca. 2023 - vollständig mit PVC

‍

Heizung:
ca. 1993 - Fernwärme mit Warmwasseraufbereitung

‍

Sanitär:
ca. 2023 - Bad mit Eckdusche

‍

Elektrik:
ca. 2023 - vollständig in der Eigentumswohnung erneuert

Wir prĂĽfen sogar die Finanzierung fĂĽr Sie.

Finanzierung prĂĽfen

Grundriss

No items found.
arrow-left
arrow-right

Anfrage

Über das nebenstehende Formular haben Sie die Möglichkeit ihr Wunschobjekt ganz unkompliziert anzufragen. Wir melden anschließend schnellstmöglich telefonisch oder per Email bei Ihnen zurück.

Paul BlĂĽmel
Ihr Ansprechpartner
+49 340 253 229 0ifc@immobilien-dessau.de
Anfrage absenden
Anfrage absenden
Thank you! Your submission has been received!
Oops! Something went wrong while submitting the form.
Vielen Dank für Ihre Anfrage! Wir werden Ihre Anfrage schnellstmöglich bearbeiten und uns anschließend persönlich mit Ihnen in Verbindung setzen.
Oops! Irgendetwas ist schief gelaufen. Bitte probieren Sie es erneut.