Einfamilienhaus in Kemberg OT Schleesen - direkt am Waldrand

Wunschobjekt ansehen

Ăśberblick

178.000 €
Preis
Kemberg OT Schleesen
Standort
ca. 1.181 m²
Grundstücksfläche

Ăśberblick

178.000 €
Miete
ca. 132 m² - zzgl. überdachter Terrasse
Mietfläche
Einfamilienhaus
Typ

Objektbeschreibung

Raumaufteilung:

‍

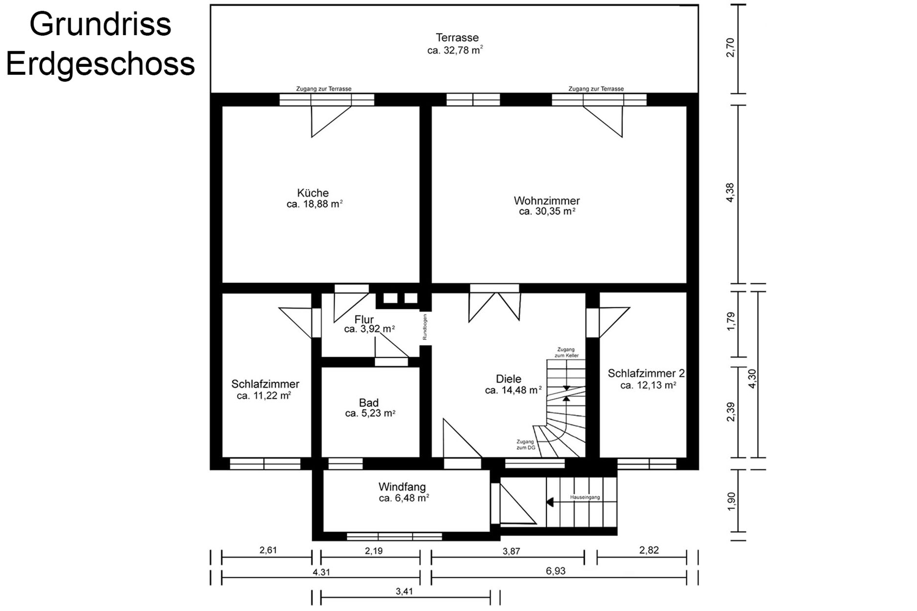
Erdgeschoss:

Wohnzimmer und KĂĽche mit Zugang zur Terrasse,
2 Schlafzimmer, Bad, Diele, Flur, Windfang

‍

Dachgeschoss:

Schlafzimmer, 2 ausbaubare Zimmer davon 1 Zimmer mit Zugang zur Dachspitze, Gäste-WC, Flur

‍

Dachspitze:

fĂĽr Abstellzwecke vorhanden

‍

Unter- / Kellergeschoss:

vollständig unterkellert (teilweise für Wohnzwecke ausgebaut - Schlafzimmer, Diele, Dusche und separates WC)

‍

Wohnfläche:

ca. 132 m² - zzgl. überdachter Terrasse

‍

GrundstĂĽck:

ca. 1.181 m²

‍

Extras:

- Kaminanschluss im Wohnzimmer möglich

- Carport und Tiefgarage vorhanden

- Drainage mit Bodenentwässerung in die Klärgrube

‍

ErschlieĂźung:

Strom, Wasser, Ă–l, Kanalisation, SAT-Anlage, Brunnenanschluss, Telefon, Internet

Objektnummer
2043
Standort
Objekttyp
Einfamilienhaus
Baujahr
ca. 1983
Wohnfläche
ca. 132 m² - zzgl. überdachter Terrasse
GrundstĂĽck
ca. 1.181 m²

Wunschobjekt gefunden?

Jetzt anfragen

Ausstattung / Aufteilung

Sanierung

‍

Dach:

Zwischendecke und Giebelseite gedämmt
ca. 2018 - 2-fach mit Schindeln gedeckt

‍

Fassade:

ca. 1983 - geputzt

ca. 2015 - gestrichen

‍

Fenster:

ca. 1997 - 2-fach Verglasung - Kunststoff (auĂźen braun / innen weiĂź bzw. braun) mit Jalousien - teilweise elektrisch sowie Fliegenschutz

‍

TĂĽren:

ca. 2015 -  EG: Eiche hell - teilweise mit Glasausschnitt
DDR-Standard - DG: originale HolztĂĽren - teilweise mit Glasausschnitt

‍

Fußböden:

Dielung, Laminat, Fliesen, PVC, Beton

‍

Heizung:

ca. 1998 - Ă–lheizung mit Warmwasseraufbereitung
Firma Viessmann (4.000 Liter)

‍

Sanitär:

ca. 2023 - EG: Bad mit Dusche

DDR-Standard - DG: Gäste-WC

DDR-Standard - Keller: separates WC und Dusche

‍

Elektrik:

DDR-Standard - teilweise saniert mit Kupfer

Wir prĂĽfen sogar die Finanzierung fĂĽr Sie.

Finanzierung prĂĽfen

Grundriss

No items found.
arrow-left
arrow-right

Anfrage

Über das nebenstehende Formular haben Sie die Möglichkeit ihr Wunschobjekt ganz unkompliziert anzufragen. Wir melden anschließend schnellstmöglich telefonisch oder per Email bei Ihnen zurück.

Paul BlĂĽmel
Ihr Ansprechpartner
+49 340 253 229 0ifc@immobilien-dessau.de
Anfrage absenden
Anfrage absenden
Thank you! Your submission has been received!
Oops! Something went wrong while submitting the form.
Vielen Dank für Ihre Anfrage! Wir werden Ihre Anfrage schnellstmöglich bearbeiten und uns anschließend persönlich mit Ihnen in Verbindung setzen.
Oops! Irgendetwas ist schief gelaufen. Bitte probieren Sie es erneut.