Einfamilienhaus mit großzügigem Grundstück in bevorzugter Lage von Dessau-Kleinkühnau

Wunschobjekt ansehen

Überblick

270.000 €
Preis
Dessau-Roßlau OT Kleinkühnau
Standort
ca. 2.458 m²
Grundstücksfläche

Überblick

270.000 €
Miete
ca. 186 m²
Mietfläche
Einfamilienhaus
Typ

Objektbeschreibung

Baujahr:

ca. 1987

Raumaufteilung:

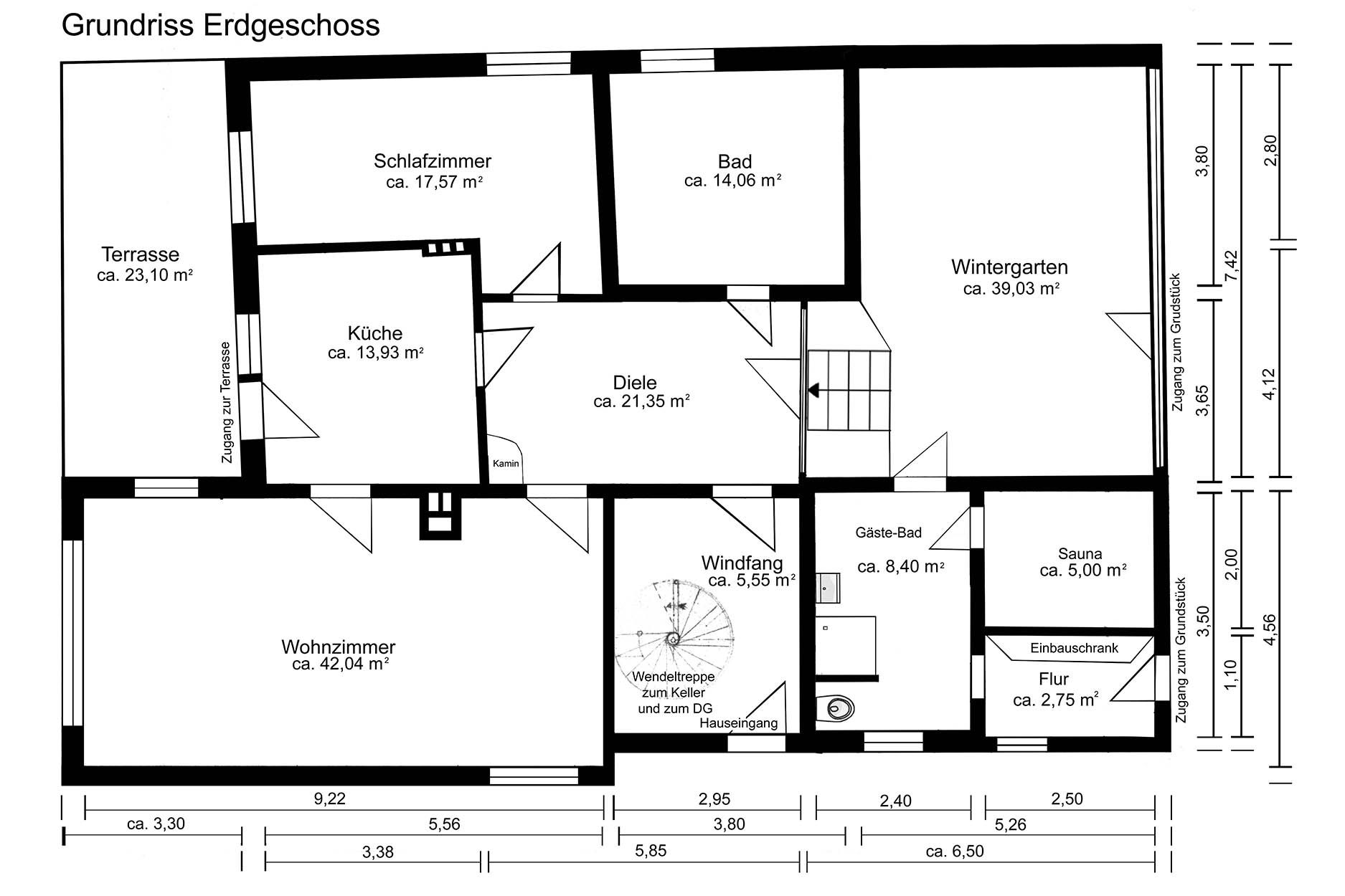
Erdgeschoss:

Wohnzimmer mit Essbereich, Küche mit Zugang zur Terrasse, Wintergarten mit Zugang zum Grundstück und zur Sauna, Schlafzimmer, Bad, Diele, Eingangsdiele

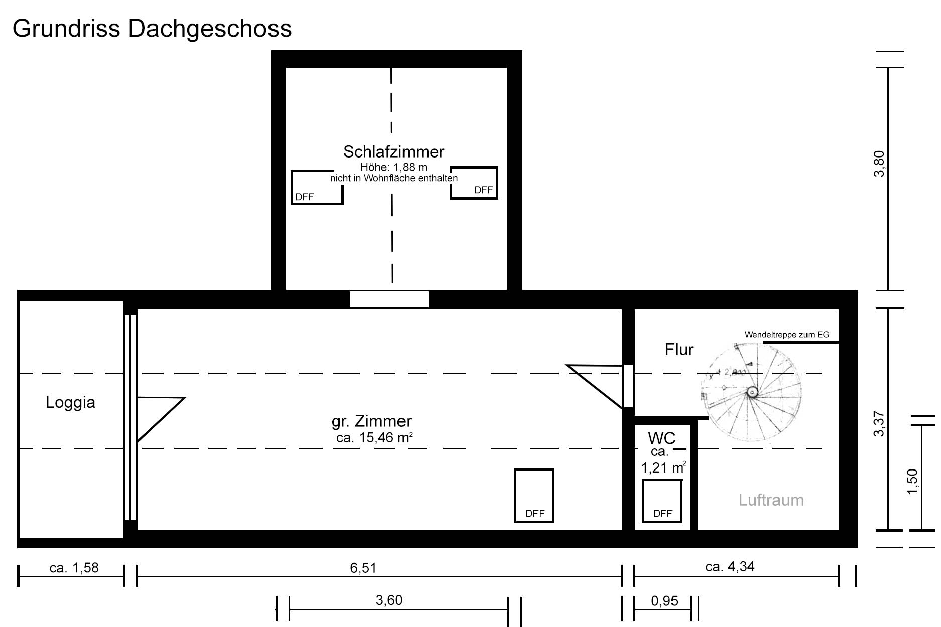
Dachgeschoss:

Schlafzimmer, Durchgangszimmer, Gäste-WC

Unter- / Kellergeschoss:

vollständig unterkellert - Hauswirtschaftsraum, 5 weitere Räume

Wohnfläche:

ca. 186 m² zzgl. Terrasse und Loggia


Grundstück:

ca. 2.458 m²

Extras:

- Kamin im Wohnzimmer

- Sauna, Tauchbecken und Bad im Keller

- Doppelgarage  (ca. 45 m²) mit elektrischem Tor (ca. 2021)

- Sommerpavillon

- Naturteich und Schwimmteich

Erschließung:

Strom, Wasser, Flüssiggas, biologische Kläranlage, Brunnenanschluss, SAT-Anlage, Telefon, Internet

Objektnummer
2035
Standort
Objekttyp
Einfamilienhaus
Baujahr
ca. 1987
Wohnfläche
ca. 186 m²
Grundstück
ca. 2.458 m²

Wunschobjekt gefunden?

Jetzt anfragen

Ausstattung / Aufteilung

Sanierung


Dach:

ca. 1990 - gedämmt und gedeckt

Fassade:

ca. 1990 - geputzt und gestrichen

Westseite gedämmt

Fenster:

ca. 1989 - Kunststoff weiß -  teilweise mit elektrischen Jalousien und Fliegenschutz

Türen:

ca. 1989 - Eiche-Echtholztüren - maßangefertigte Tischlerarbeit

Fußböden:

Dielung, Parkett, Fliesen

Heizung:

ca. 2025 - Erdgas-Brennwerttherme - Firma Buderus

Flüssiggas 5.000 Liter mit Wartungsvertrag

Sanitär:

ca. 2000 - EG: Bad mit Eckwanne, Dusche

ca. 2000 - DG: Gäste-WC

ca. 1990 - UG: Bad mit Dusche

Elektrik:
ca. 2000 - vollständig erneuert

Wir prüfen sogar die Finanzierung für Sie.

Finanzierung prüfen

Grundriss

No items found.
arrow-left
arrow-right

EnEV-Datenblatt

Datenblatt einsehen

Anfrage

Über das nebenstehende Formular haben Sie die Möglichkeit ihr Wunschobjekt ganz unkompliziert anzufragen. Wir melden anschließend schnellstmöglich telefonisch oder per Email bei Ihnen zurück.

Paul Blümel
Ihr Ansprechpartner
+49 340 253 229 0ifc@immobilien-dessau.de
Anfrage absenden
Anfrage absenden
Thank you! Your submission has been received!
Oops! Something went wrong while submitting the form.
Vielen Dank für Ihre Anfrage! Wir werden Ihre Anfrage schnellstmöglich bearbeiten und uns anschließend persönlich mit Ihnen in Verbindung setzen.
Oops! Irgendetwas ist schief gelaufen. Bitte probieren Sie es erneut.