gepflegtes Einfamilienhaus in Dessau-RoĂźlau OT Rodleben

Wunschobjekt ansehen

Ăśberblick

219.000 €
Preis
Dessau-RoĂźlau OT Rodleben
Standort
ca. 599 m²
Grundstücksfläche

Ăśberblick

219.000 €
Miete
ca. 110 m²
Mietfläche
Einfamilienhaus
Typ

Objektbeschreibung

Raumaufteilung:

‍

Erdgeschoss:

Wohnzimmer mit Erker und Zugang zur Terrasse, Küche, Hauswirtschaftsraum, Gäste-WC, Diele

‍

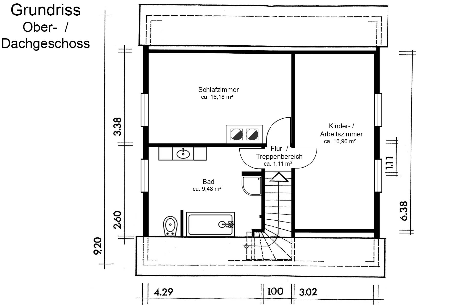
Ober- / Dachgeschoss:

2 Zimmer, Bad, Flur

‍

Wohnfläche:

ca. 110 m²

‍

GrundstĂĽck:

ca. 599 m²

‍

Extras:

- Doppelgarage mit Werkstatt (ca. 56 m²) und elektrischem Tor

- gepflegtes GrundstĂĽck

‍

ErschlieĂźung:

Strom, Wasser, Erdgas, Kanalisation, SAT-Anlage, Brunnenanschluss, Telefon, Internet

Objektnummer
2033
Standort
Objekttyp
Einfamilienhaus
Baujahr
ca. 1997
Wohnfläche
ca. 110 m²
GrundstĂĽck
ca. 599 m²

Wunschobjekt gefunden?

Jetzt anfragen

Ausstattung / Aufteilung

Sanierung

‍

Dach:

ca. 1997 - gedämmt und gedeckt

‍

Fassade:

ca. 1997 - gedämmt und geputzt

ca. 2022 - gestrichen

ca. 2025 - Giebel gestrichen

‍

Fenster:

ca. 1997 - Holz Eiche mit Sprossen und Jalousien - teilweise elektrisch

‍
TĂĽren:

ca. 1997 - Eiche hell

‍
Fußböden:

ca. 2005 - Fliesen, Laminat

‍
Heizung:

ca. 1997 - Erdgasheizung mit Warmwasseraufbereitung

ca. 2025 - Warmwasserboiler erneuert

‍

Sanitär:

ca. 1997 - EG: Gäste-WC mit Dusche

ca. 1997 - DG: Bad mit Wanne und Dusche

‍

Elektrik:

Stand ca. 1997

Wir prĂĽfen sogar die Finanzierung fĂĽr Sie.

Finanzierung prĂĽfen

Grundriss

No items found.
arrow-left
arrow-right

Anfrage

Über das nebenstehende Formular haben Sie die Möglichkeit ihr Wunschobjekt ganz unkompliziert anzufragen. Wir melden anschließend schnellstmöglich telefonisch oder per Email bei Ihnen zurück.

Paul BlĂĽmel
Ihr Ansprechpartner
+49 340 253 229 0ifc@immobilien-dessau.de
Anfrage absenden
Anfrage absenden
Thank you! Your submission has been received!
Oops! Something went wrong while submitting the form.
Vielen Dank für Ihre Anfrage! Wir werden Ihre Anfrage schnellstmöglich bearbeiten und uns anschließend persönlich mit Ihnen in Verbindung setzen.
Oops! Irgendetwas ist schief gelaufen. Bitte probieren Sie es erneut.