RESERVIERT - Doppelhaushälfte in Sandersdorf-Brehna OT Zscherndorf

Wunschobjekt ansehen

Ăśberblick

75.000 €
Preis
Sandersdorf-Brehna OT Zscherndorf - RESERVIERT
Standort
ca. 489 m²
Grundstücksfläche

Ăśberblick

75.000 €
Miete
ca. 124 m²
Mietfläche
Doppelhaushälfte
Typ

Objektbeschreibung

Raumaufteilung:

‍

Erdgeschoss:
Wohnzimmer, Esszimmer, Schlafzimmer, KĂĽche, Bad, Diele
‍
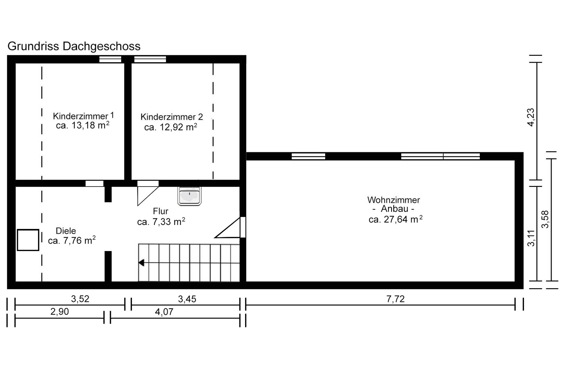
Dachgeschoss:
2 Kinderzimmer, Wohnzimmer, Diele, Flur

‍Unter- / Kellergeschoss:
1 Kellerraum - Gewölbekeller

‍

Wohnfläche:

ca. 124 m²

‍

GrundstĂĽck:

ca. 489 m²

‍

Extras:

- Carport und weiterer Stellplatz in der Zufahrt vorhanden
- gepflasterter Innenhof
- gepflegtes GrundstĂĽck
- Pool vorhanden

‍

ErschlieĂźung:

Strom, Wasser, Ă–l, Kanalisation liegt vor dem Haus an, Telefon, Internet - Glasfaser

Objektnummer
2023
Standort
Objekttyp
Doppelhaushälfte
Baujahr
ca. 1930 / Anbau: ca. 1994
Wohnfläche
ca. 124 m²
GrundstĂĽck
ca. 489 m²

Wunschobjekt gefunden?

Jetzt anfragen

Ausstattung / Aufteilung

Sanierung

‍

Dach:

ca. 1994 Hauptdach gedämmt und mit Ziegeln gedeckt
ca. 2022 Hauptdach neu beschichtet
Anbau mit SchweiĂźbahnen

‍

Fassade:

ca. 1994 Vorhangfassade

‍

Fenster:

ca. 1994 EG/ DG: Kunststoff innen weiĂź, auĂźen braun mit Jalousien
EG: teilweise mit Messingsprossen
DG: 1 Dachflächenfenster aus Holz

‍

TĂĽren:

HolztĂĽren teilweise mit Glaseinsatz und SchiebetĂĽren

‍

Fußböden:

EG: Laminat, Fliesen, PVC
DG: PVC, textiler Belag darunter Dielung

‍

Heizung:

ca. 1990 Ă–lheizung mit Warmwasseraufbereitung
ca. 2012 Platine gewechselt

‍

Sanitär:

ca. 1996 EG: Eckwanne, Dusche, Waschtisch, WC

‍

Elektrik:

Stand 1979
teilweise erneuert

Wir prĂĽfen sogar die Finanzierung fĂĽr Sie.

Finanzierung prĂĽfen

Grundriss

No items found.
arrow-left
arrow-right

Anfrage

Über das nebenstehende Formular haben Sie die Möglichkeit ihr Wunschobjekt ganz unkompliziert anzufragen. Wir melden anschließend schnellstmöglich telefonisch oder per Email bei Ihnen zurück.

Paul BlĂĽmel
Ihr Ansprechpartner
+49 340 253 229 0ifc@immobilien-dessau.de
Anfrage absenden
Anfrage absenden
Thank you! Your submission has been received!
Oops! Something went wrong while submitting the form.
Vielen Dank für Ihre Anfrage! Wir werden Ihre Anfrage schnellstmöglich bearbeiten und uns anschließend persönlich mit Ihnen in Verbindung setzen.
Oops! Irgendetwas ist schief gelaufen. Bitte probieren Sie es erneut.