RESERVIERT - Doppelhaushälfte in Dessau-Roßlau OT Waldersee

Wunschobjekt ansehen

Überblick

165.000 €
Preis
Dessau-Roßlau OT Waldersee - RESERVIERT
Standort
ca. 913 m²
Grundstücksfläche

Überblick

165.000 €
Miete
ca. 92 m²
Mietfläche
Doppelhaushälfte
Typ

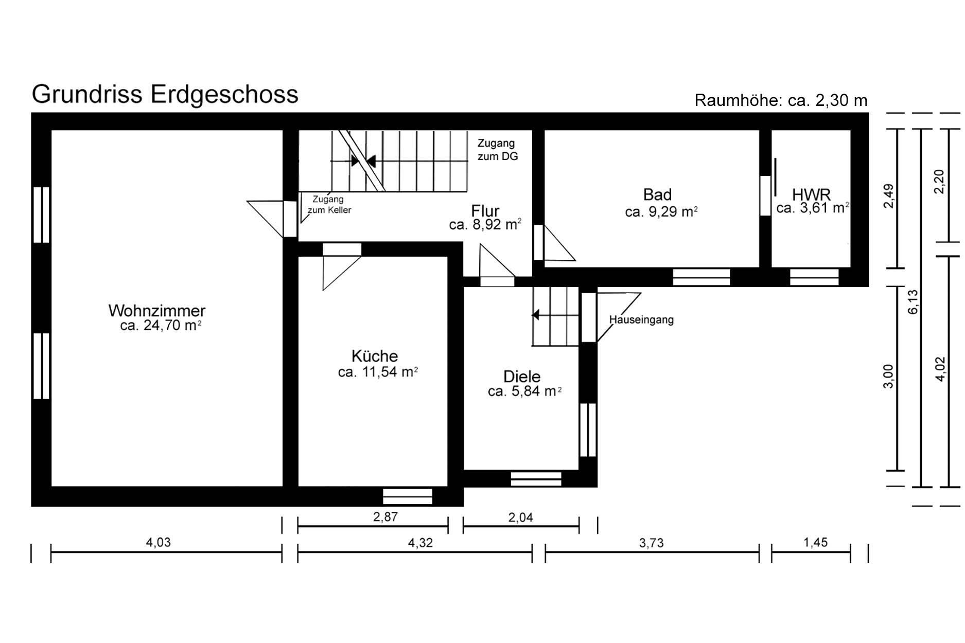
Objektbeschreibung

Raumaufteilung:

Erdgeschoss:

Veranda, Flur, großes Wohnzimmer, Küche, Bad, Hauswirtschaftsraum

Obergeschoss:

Kinder- / Durchgangszimmer, Schlafzimmer, Flur

Dachspitze:

Dachspitze für Abstellzwecke

Unter- / Kellergeschoss:

vollständig unterkellert

Wohnfläche:

ca. 92 m2

Grundstück:

ca. 913 m2

Extras:

- Carport vorhanden

- gepflasterter Innenhof

- Zaunanlage zur Straßenseite

- gepflegtes Grundstück

- ca. 2002 - Treppe zum OG und Keller erneuert

Erschließung:

Strom, Wasser, Erdgas, Kanalisation, Brunnenanschluss, SAT-Anlage, Telefon, Internet, Kaminanschluss möglich

Objektnummer
2019
Standort
Objekttyp
Doppelhaushälfte
Baujahr
ca. 1936 / Anbau: ca. 2002
Wohnfläche
ca. 92 m²
Grundstück
ca. 913 m²

Wunschobjekt gefunden?

Jetzt anfragen

Ausstattung / Aufteilung

Sanierung

Dach:

ca. 1997/1998 - teilweise gedämmt und gedeckt

Fassade:

ca. 1997 - Vorhangfassade

ca. 2002 - Anbau: gedämmt, geputzt und gestrichen

Fenster:

ca. 1997 - Kunststoff weiß mit Jalousien

ca. 2002 - erneuert in Bad und HWR

Türen:

ca.  2002 - Buche hell, teilweise mit Glasausschnitt

Fußböden:

EG: Fliesen

OG: Dielung, PVC

Heizung:

ca. 2002 Erdgas Niedertemperaturkessel (Weishaupt) mit Warmwasserspeicher

EG: Fußbodenheizung (außer Veranda)

OG: Heizkörper

Sanitär:

ca. 2023 - EG: ebenerdige Dusche, Waschtisch, WC, Wanne - bodentief (ca. 2002)

Elektrik:

ca. 2002 - vollständig erneuert

Wir prüfen sogar die Finanzierung für Sie.

Finanzierung prüfen

Grundriss

No items found.
arrow-left
arrow-right

EnEV-Datenblatt

Datenblatt einsehen

Anfrage

Über das nebenstehende Formular haben Sie die Möglichkeit ihr Wunschobjekt ganz unkompliziert anzufragen. Wir melden anschließend schnellstmöglich telefonisch oder per Email bei Ihnen zurück.

Paul Blümel
Ihr Ansprechpartner
+49 340 253 229 0ifc@immobilien-dessau.de
Anfrage absenden
Anfrage absenden
Thank you! Your submission has been received!
Oops! Something went wrong while submitting the form.
Vielen Dank für Ihre Anfrage! Wir werden Ihre Anfrage schnellstmöglich bearbeiten und uns anschließend persönlich mit Ihnen in Verbindung setzen.
Oops! Irgendetwas ist schief gelaufen. Bitte probieren Sie es erneut.