Attraktive Doppelhaushälfte in verkehrsberuhigter Lage von Dessau-Alten

Wunschobjekt ansehen

Ăśberblick

180.000 €
Preis
Dessau-RoĂźlau OT Alten
Standort
ca. 431 m²
Grundstücksfläche

Ăśberblick

180.000 €
Miete
ca. 110 m²
Mietfläche
Doppelhaushälfte
Typ

Objektbeschreibung

Raumaufteilung:

‍

Erdgeschoss:

Wohnzimmer, Esszimmer, Schlafzimmer, KĂĽche, Bad, Diele

‍

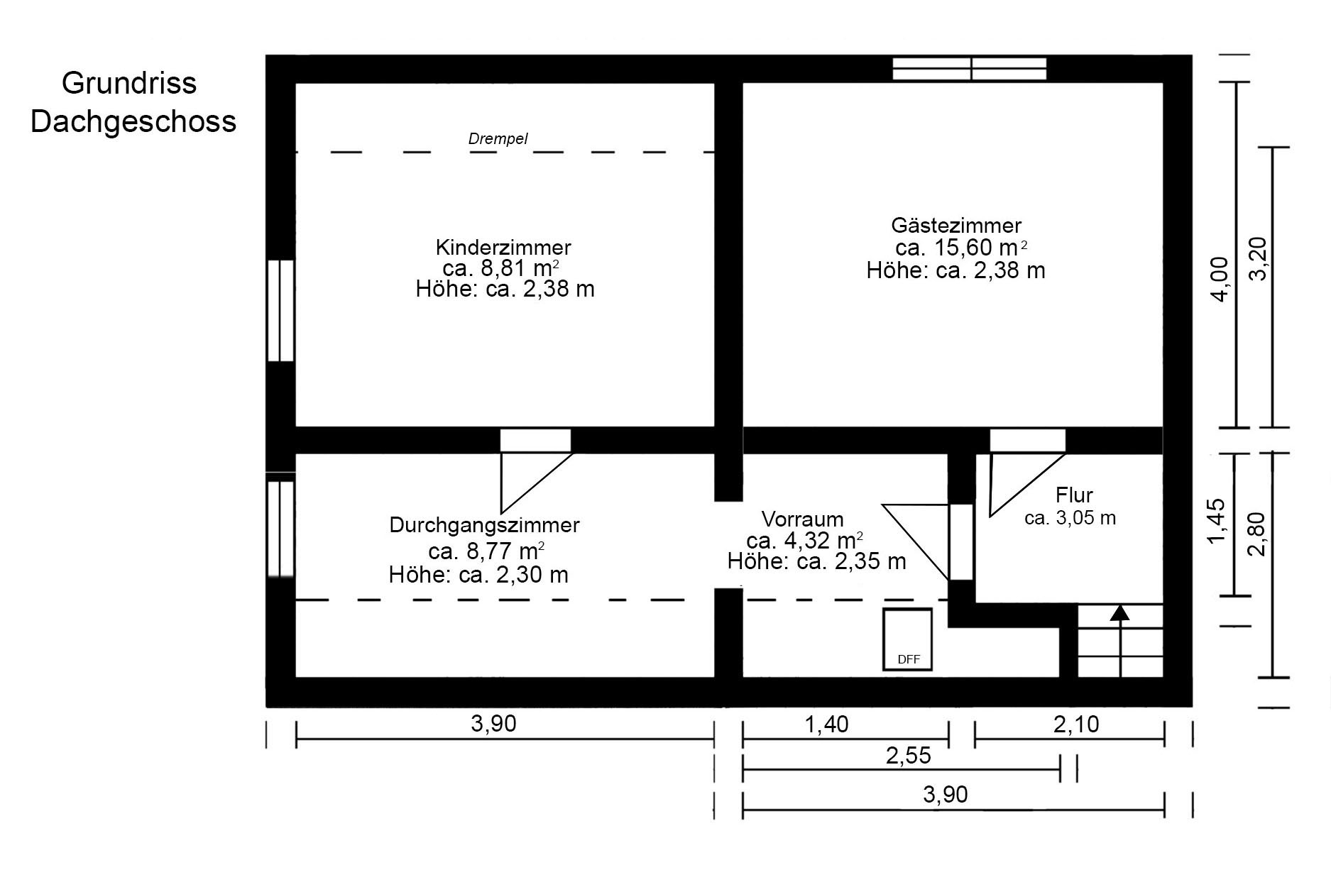
Dachgeschoss:

Kinderzimmer, Gästezimmer, Durchgangszimmer, Flur, Vorraum

‍

Dachspitze:

fĂĽr Abstellzwecke geeignet

‍

Unter- / Kellergeschoss:

vollständig unterkellert (außer Diele und Bad)

‍

Wohnfläche:

ca. 110 m²

‍

GrundstĂĽck:

ca. 431 m²

‍

Extras:

- Kaminanschluss im Ess- und Wohnzimmer möglich

- überdachte Terrasse (ca. 10 m²)

- gepflasterte Zufahrt

- Nebengelass (ca. 14,5 m x 4 m) mit Garage und Abstellraum

‍

ErschlieĂźung:

Strom, Wasser, Ă–l, Erdgas liegt in der StraĂźe an, Kanalisation, Brunnenanschluss, Kabelanschluss, Telefon, Internet

Objektnummer
2062
Standort
Objekttyp
Doppelhaushälfte
Baujahr
ca. 1938
Wohnfläche
ca. 110 m²
GrundstĂĽck
ca. 431 m²

Wunschobjekt gefunden?

Jetzt anfragen

Ausstattung / Aufteilung

Sanierung

‍

Dach:

ca. 2014 - Zwischendecke gedämmt, mit glasierten Ziegeln gedeckt

‍

Fassade:

ca. 2014 - gedämmt, geputzt und gestrichen

‍

Fenster:

ca. 2006 - Kunststoff weiĂź mit Jalousien

‍

TĂĽren:

ca. 2006 - EG: Eiche hell

ca. 2010 - DG: Buche hell

‍

Fußböden:

ca. 2005 - EG/ DG: Laminat, Fliesen, PVC

‍

Heizung:

ca. 1993 - Ă–lheizung mit Warmwasseraufbereitung (ca. 4.000 Liter)

ca. 2025 - Warmwasserspeicher erneuert

‍

Sanitär:

ca. 1990 - EG: Bad mit Wanne, Dusche und Waschmaschinenanschluss

‍

Elektrik:

ca. 2002 - EG/ DG: vollständig erneuert

Wir prĂĽfen sogar die Finanzierung fĂĽr Sie.

Finanzierung prĂĽfen

Grundriss

No items found.
arrow-left
arrow-right

Anfrage

Über das nebenstehende Formular haben Sie die Möglichkeit ihr Wunschobjekt ganz unkompliziert anzufragen. Wir melden anschließend schnellstmöglich telefonisch oder per Email bei Ihnen zurück.

Paul BlĂĽmel
Ihr Ansprechpartner
+49 340 253 229 0ifc@immobilien-dessau.de
Anfrage absenden
Anfrage absenden
Thank you! Your submission has been received!
Oops! Something went wrong while submitting the form.
Vielen Dank für Ihre Anfrage! Wir werden Ihre Anfrage schnellstmöglich bearbeiten und uns anschließend persönlich mit Ihnen in Verbindung setzen.
Oops! Irgendetwas ist schief gelaufen. Bitte probieren Sie es erneut.