besonderer 4-Seitenhof mit Herrenhaus, Nebengelass und ca. 6.055 m² Grundstück in Kemberg OT Rackith

Wunschobjekt ansehen

Überblick

350.000 €
Preis
Kemberg OT Rackith
Standort
ca. 6.055 m²
Grundstücksfläche

Überblick

350.000 €
Miete
ca. 243 m² Herrenhaus
Mietfläche
4-Seitenhof, Bauernhof, Mehrfamilienhaus
Typ

Objektbeschreibung

Baujahr:

ca. 1900 - Mietshaus (MH) - vermietetes Einfamilienhaus - denkmalgeschützt

ca. 1900 - Klinkerbau mit Einliegerwohnung - denkmalgeschützt

ca. 1871 - Herrenhaus (HH) - denkmalgeschützt

ca. 1900 - 2 Nebengelässer und Scheunen - umfassend saniert ca. 1990

Raumaufteilung - Herrenhaus:

Erdgeschoss:

Wohnzimmer, Esszimmer, kleines Wohnzimmer, Küche mit Zugang zur Terrasse, Abstellraum mit Zugang zum Nebengelass 2, Abstellkammer, Bad, Diele

Obergeschoss:

Wohnzimmer, Schlafzimmer, 2 weitere Zimmer, Gäste-WC, Diele, Abstellkammer, ehemalige Räucherkammer, Flur

Dachgeschoss:

vollständig ausbaufähig - derzeit für Abstellzwecke genutzt

Unter- / Kellergeschoss:

1 Kellerraum - Gewölbekeller

Wohnfläche:

ca. 243 m² Herrenhaus

ca. 84 m² Mietshaus

ca. 51 m² Klinkerbau Einliegerwohnung

Grundstück:

ca. 6.055 m²

weitere Fläche ca. 10.000 m² zur Pacht möglich

Extras:

- Herrenhaus teilweise Flamenco-Spanndecken

- zusätzliche Kachelöfen im Herrenhaus

- Klinkerbau mit ehemaligem Schlachthaus im EG und sanierungsbedürftiger Wohnung im DG

- vermietetes Einfamilienhaus (MH) als Kapitalanlage - monatliche Kaltmiete - derzeit: 369,13 € - ca. 1995 vollständig saniert und mit eigenem Zugang

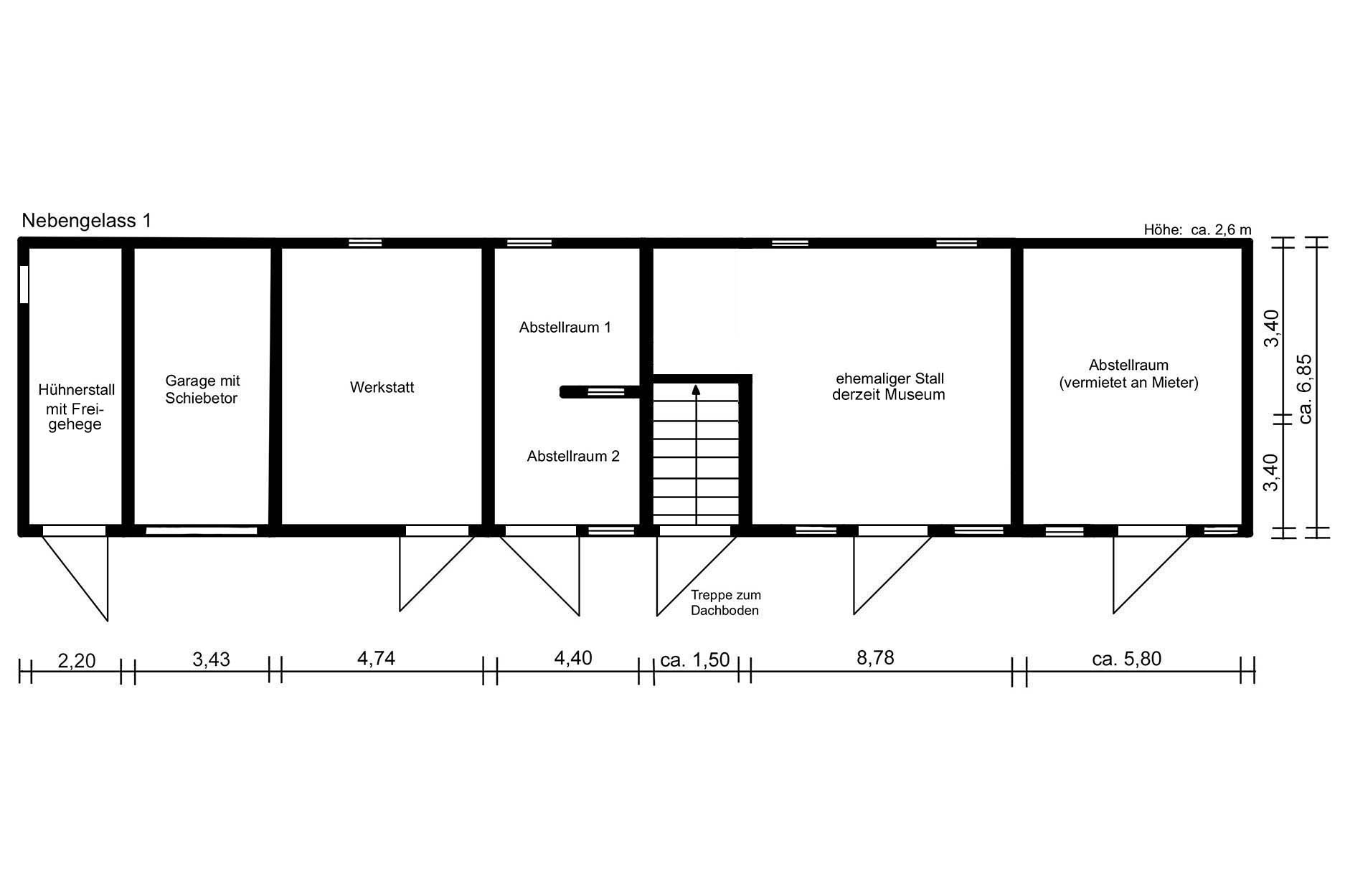
- saniertes und gepflegtes Nebengelass 1 mit Stallungen, Abstellräumen und Garage - sofortige Nutzung möglich

- Nebengelass 2 (Durchgang zum Herrenhaus möglich) mit Hauswirtschaftsraum, Heizraum, weiteren Räumlichkeiten, beheiztem Büro und Bad mit Sauna - ca. 1990 saniert

- zusätzliche Scheunen vorhanden

- Taubenhaus 3-etagig - ca. 1994 saniert - denkmalgeschützt

- Dachböden in den Nebengelässern

- gepflegter und angelegter Innenhof mit mehreren Durchfahrten zum Grundstück

- massiver Tierunterstand auf dem Grundstück

Erschließung:

Strom, Wasser, Erdgas, Kanalisation, Brunnenanschluss, SAT-Anlage, Telefon, Internet- sämtlich anfallende Nebenkosten des Mieters werden mit den Versorgungsfirmen direkt abgerechnet

Objektnummer
2021
Standort
Objekttyp
4-Seitenhof, Bauernhof, Mehrfamilienhaus
Baujahr
ca. 1871
Wohnfläche
ca. 243 m² Herrenhaus
Grundstück
ca. 6.055 m²

Wunschobjekt gefunden?

Jetzt anfragen

Ausstattung / Aufteilung

Sanierung

Dach:

ca. 1995 - HH / MH und Nebengelässer - gedeckt

Scheune - Profilblech

Fassade:

ca. 1995 - HH - geputzt

ca. 2010 - HH - gestrichen

Mietshaus und Klinkerbau verklinkert - original gepflegter Zustand

ca. 1990 - Nebengelässer - geputzt und gestrichen

Fenster:

ca. 1995 - HH - Kunststoff innen weiß und außen braun teilweise mit Sprossen

ca. 1995 - MH - Kunststoff weiß

Klinkerbau - Kunststoff weiß und teilweise Holz alt

Nebengelässer - Kunststoff weiß und teilweise Holz alt

Türen:

ca. 1998 - HH - originale Holztüren - überarbeitet

ca. 1995 - MH - erneuert

Nebengelässer mit massiven Holztüren und -toren

Fußböden:

ca. 1990 - HH - EG: Dielung, Parkett, Fliesen

ca. 1990 - HH - OG: Parkett, Fliesen, Laminat, PVC

MH - Laminat, Fliesen

Nebengelässer - originale Steinfußböden, Fliesen, Beton - gut erhalten

Heizung:

ca. 1995 - HH - Heizkörper erneuert

ca. 2022 - HH - Erdgas-Brennwerttherme (Firma Viessmann) mit Warmwasseraufbereitung

ca. 1995 - MH - separate Erdgas-Heizung mit Warmwasseraufbereitung

Klinkerbau - Einliegerwohnung - nur Ofenheizung

Nebengelass 2 - Büro und Bad beheizbar

Sanitär:

ca. 1995 - HH - EG: Bad mit Dusche

ca. 2022 - HH - OG: Gäste-WC

Klinkerbau Einliegerwohnung - Bad mit Wanne -DDR-Standard

Nebengelass 2: Bad mit Dusche und Sauna (abgrenzend vom HH)

Elektrik:

zwischen 1995 und 2005 erneuert - großteils auch in den Nebengelässern

Wir prüfen sogar die Finanzierung für Sie.

Finanzierung prüfen

Grundriss

No items found.
arrow-left
arrow-right

EnEV-Datenblatt

Datenblatt einsehen

Anfrage

Über das nebenstehende Formular haben Sie die Möglichkeit ihr Wunschobjekt ganz unkompliziert anzufragen. Wir melden anschließend schnellstmöglich telefonisch oder per Email bei Ihnen zurück.

Paul Blümel
Ihr Ansprechpartner
+49 340 253 229 0ifc@immobilien-dessau.de
Anfrage absenden
Anfrage absenden
Thank you! Your submission has been received!
Oops! Something went wrong while submitting the form.
Vielen Dank für Ihre Anfrage! Wir werden Ihre Anfrage schnellstmöglich bearbeiten und uns anschließend persönlich mit Ihnen in Verbindung setzen.
Oops! Irgendetwas ist schief gelaufen. Bitte probieren Sie es erneut.