schöne 2-Zi.-Eigentumswohnung mit Garagenstellplatz in Dessau-Nord - am Schillerpark

Wunschobjekt ansehen

Ăśberblick

105.000 €
Preis
Dessau-RoĂźlau OT Nord
Standort
ca. 650 m²
Grundstücksfläche

Ăśberblick

105.000 €
Miete
ca. 47,25 m²
Mietfläche
Eigentumswohnung
Typ

Objektbeschreibung

Baujahr:

ca. 1994

‍

Etage:

2. Obergeschoss - rechts

‍

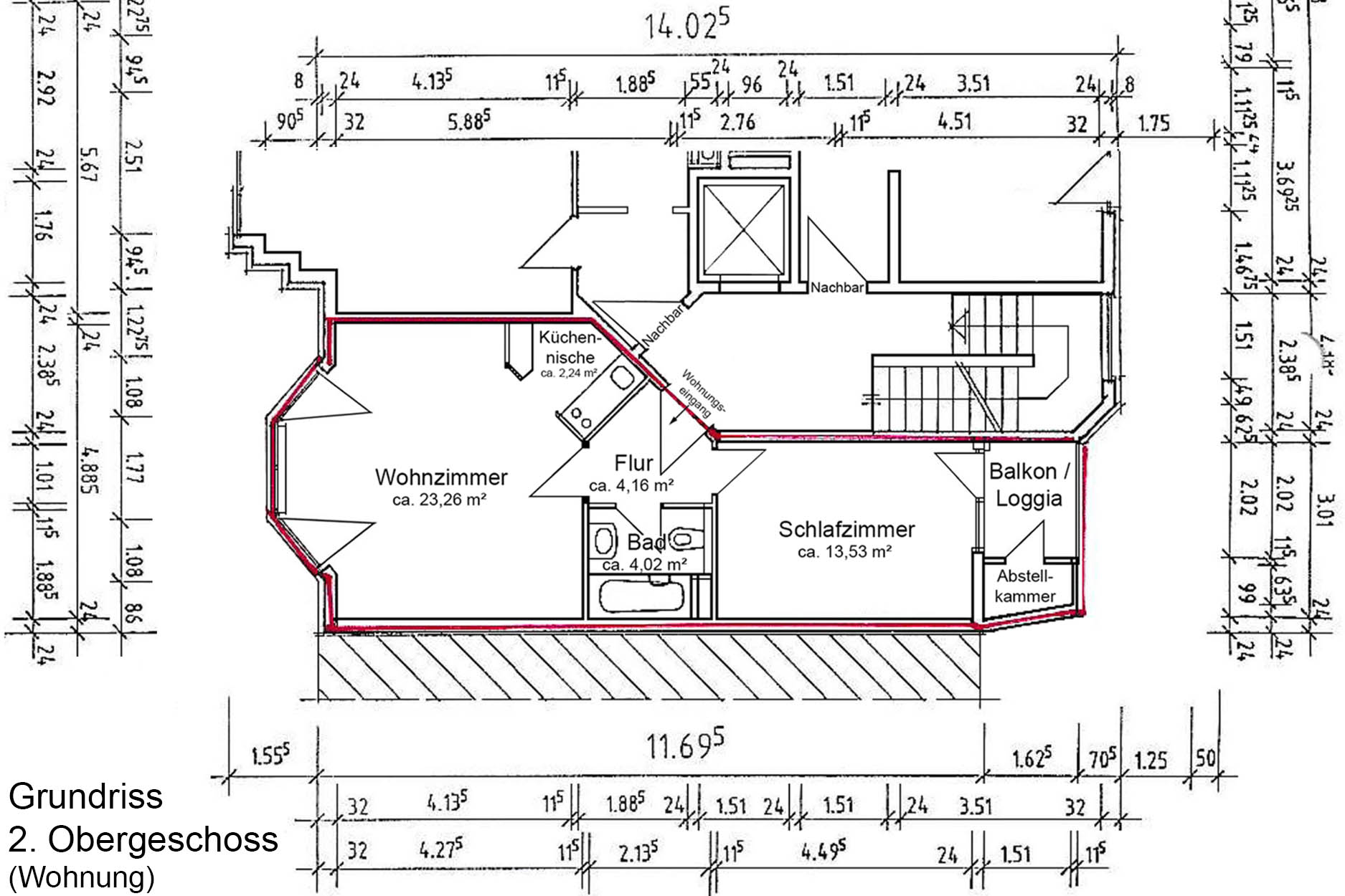
Raumaufteilung (2. OG):

Wohnzimmer mit kleiner KĂĽchenzeile und Blick in den Park, Schlafzimmer mit Balkon (Loggia) und Abstellraum, Bad, Flur

‍

Unter- / Kellergeschoss:

zugehöriger Kellerraum, Fahrradkeller, Gemeinschaftskeller (Trockenraum)

‍

Wohnfläche:

ca. 47,25 m²

‍

Extras:

- Aufzug vorhanden

- Tiefgaragenstellplatz und AuĂźenstellplatz vorhanden
- monatliches Hausgeld ca. 341,00 €

‍

ErschlieĂźung:

Strom, Wasser, Fernwärme, Kanalisation, Kabelanschluss, Telefon, Internet

Objektnummer
2034
Standort
Objekttyp
Eigentumswohnung
Baujahr
ca. 1994
Wohnfläche
ca. 47,25 m²
GrundstĂĽck
ca. 650 m²

Wunschobjekt gefunden?

Jetzt anfragen

Ausstattung / Aufteilung

Sanierung

‍

Dach:

ca. 1994 - gedämmt und mit Ziegeln gedeckt

‍

Fassade:

ca. 1994 - gedämmt, geputzt und gestrichen

‍

Fenster:

ca. 1994 - Kunststoff weiĂź

‍

TĂĽren:

ca. 1994 - InnentĂĽren Holz weiĂź / GlastĂĽr im Wohnzimmer

‍

Fußböden:

ca. 1994 - Fliesen in KĂĽche, Bad und Wohnungsflur, textiler Belag im Schlafzimmer

ca. 2024 - Vinyl im Wohnzimmer

‍

Heizung:

ca. 1994 - Fernwärme mit Warmwasseraufbereitung

‍

Sanitär:

ca. 1994 - Bad mit Wanne, Waschbecken und Handtuchtrockner

‍

Elektrik:

Stand ca. 1994

Wir prĂĽfen sogar die Finanzierung fĂĽr Sie.

Finanzierung prĂĽfen

Grundriss

No items found.
arrow-left
arrow-right

Anfrage

Über das nebenstehende Formular haben Sie die Möglichkeit ihr Wunschobjekt ganz unkompliziert anzufragen. Wir melden anschließend schnellstmöglich telefonisch oder per Email bei Ihnen zurück.

Paul BlĂĽmel
Ihr Ansprechpartner
+49 340 253 229 0ifc@immobilien-dessau.de
Anfrage absenden
Anfrage absenden
Thank you! Your submission has been received!
Oops! Something went wrong while submitting the form.
Vielen Dank für Ihre Anfrage! Wir werden Ihre Anfrage schnellstmöglich bearbeiten und uns anschließend persönlich mit Ihnen in Verbindung setzen.
Oops! Irgendetwas ist schief gelaufen. Bitte probieren Sie es erneut.